Langegracht 17 A 3811BV Amersfoort

Langegracht 17 A
3811BV Amersfoort, Lieve Vrouwekerkhof

€571,99

Per maand

Interesse in dit type woning?

Ontvang direct bericht als er nieuwe woningen beschikbaar komen die bij uw woonwensen passen.

Meld je aan voor woningalerts

Gratis en vrijblijvend

Historische informatie

Deze huurwoning was beschikbaar voor reacties van 20-01-2026 tot 25-01-2026. Deze woning is niet meer beschikbaar voor nieuwe reacties.

🏠

47.17m²

Woonoppervlakte

🛏️

2

Kamers

Leegstand

Status

🌟

F

Energielabel

Langegracht 17A voor jongeren tot 28 jaar

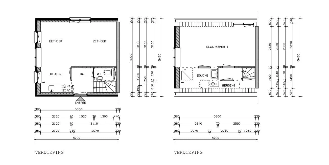
Leuk appartement voor jongeren tot 28 jaar. Het appartement bevindt zich op de eerste en heeft nog een tweede verdieping. Op de eerste etage bevindt zich de woonkamer met open keuken en toilet. Op de tweede etage treft u een slaapkamer en douche aan.

In het complex is geen lift aanwezig. 

Ligging
De woning is goed bereikbaar met veel voorzieningen in de buurt. Op loopafstand van het centrum van Amersfoort. Dit betekend dat je de leef geluiden die passen bij de binnenstad mogelijk kan horen. Hou hier rekening mee. 

Hou er rekening mee dat je woont in het centrum van Amersfoort. Parkeren bij de woning is niet standaard mogelijk, misschien kom je in aanmerking komen voor een parkeervergunning dit kan je aanvragen bij de Gemeente Amersfoort. Omnia Wonen is hiervoor niet verantwoordelijk. 

Verhuurbaar per
De woning is beschikbaar per 29 januari 2026, onder voorbehoud van eventuele werkzaamheden.

Overnames
In de woning zijn diverse zaken ter overname, zoals in ieder geval de laminaatvloer in de gehele woning. Verder zijn er nog enkele zaken die overgenomen kunnen worden. 

Bezichtiging

Groepsbezichtiging is op donderdag 29 januari 2026 om 15:00 uur bij de woning. Bezichtigen is verplicht voordat de woning geaccepteerd kan worden. Let op: alleen als u wordt uitgenodigd kunt u deelnemen aan de bezichtiging.

Blokverwarming
In het appartement is blokverwarming aanwezig. Bij blokverwarming (ook wel stadsverwarming genoemd) worden meerdere huizen verwarmd door dezelfde ketel. Huizen die op blokverwarming zijn aangesloten, hebben ook geen eigen cv-ketel. De kosten van de blokverwarming zijn mee genomen in de servicekosten.

De woning is voorzien van een huurboiler voor het warme water. Als huurder zul je hiervoor zelf een contract moeten afsluiten. Dit zulle extra kosten zijn. Dit is geen verantwoordelijkheid voor de woningbouw. De kosten hiervan zullen ongeveer € 15,- per maand bedragen. * onder voorbehoud van wijzigingen en fouten. 

Verduurzaamheidswerkzaamheden
Begin 2027 zullen er verduurzaamheidswerkzaamheden plaatsvinden aan dit gebouw. Samen met onze leverancier zijn wij momenteel bezig met het opstellen van plannen en een planning. Deze planning is nog niet definitief; hieraan kunnen dan ook geen rechten worden ontleend.

Door het uitvoeren van deze verduurzaamheidswerkzaamheden zal de woning een hoger energielabel krijgen.

Benodigde documenten voor verhuur (uiterlijk binnen 2 werkdagen naar aanbieding bij ons binnen zijn)
Binnen twee werkdagen na een aanbieding ontvangen wij graag de volgende documenten, geüpload in uw Woningnet-account of per e-mail naar info@omniawonen.nl onder vermelding van het adres (let op: alleen als u een aanbieding ontvangt):

  1. De meest recente inkomensverklaring van de Belastingdienst 2024 of 2025 (of meest recente definitieve aanslag inkomstenbelasting) van u en van uw eventuele partner (ook als deze geen eigen inkomen heeft) U moet zelf uw BSN nummer wegstrepen. Anders mogen wij deze niet behandelen. 
  2. BRP van de gezinssamenstelling + woonhistorie op te vragen bij de gemeente. Woonhistorie is ook op te vragen met uw DIGID via www.mijnoverheid.nl
  3. Een verhuurdersverklaring. Deze kunt u opvragen bij uw huidige of uw laatste verhuurder. Heeft u een koopwoning, dan zouden wij graag drie afschriften van de hypotheek willen zien.
  4. Antwoord en gegevensformulier  digitaal te bereiken via https://www.omniawonen.nl/acceptatieformulier/of op papier via: Acceptatie-en-gegevensformulier.pdf (omniawonen.nl)

*Aan de vermelde huurprijs en plattegrond kunnen geen rechten worden ontleend.*

📋 Specificaties

Type

Woonruimte

Soort woning

Portiekwoning

Verdieping

1

Lift

❌ Nee

🏠 Vertrekken

Badkamer 1x (4m²)
Keuken 1x (4m²)
Slaapkamer 1x (16m²)
Woonkamer 1x (16m²)

💰 Prijsopbouw

Niet subsidiabele servicekosten €13,24
Warmte €130,99

📍 Locatie

Kaart laden...

🚉

OV

5 min lopen naar station

🏬

Winkels

2 min lopen

🏫

Scholen

Meerdere binnen 1km

🌳

Park

10 min lopen

✅ Selectiecriteria

tot 28 jaar
Je inkomen is niet hoger dan € 51537
Je inkomen is niet hoger dan € 56910
Meld je aan