Garietstraat 19 3813BD Amersfoort

Garietstraat 19
3813BD Amersfoort, Vuurtoren

€834,67

Per maand

Interesse in dit type woning?

Ontvang direct bericht als er nieuwe woningen beschikbaar komen die bij uw woonwensen passen.

Meld je aan voor woningalerts

Gratis en vrijblijvend

Historische informatie

Deze huurwoning was beschikbaar voor reacties van 02-04-2026 tot 06-04-2026. Deze woning is niet meer beschikbaar voor nieuwe reacties.

🏠

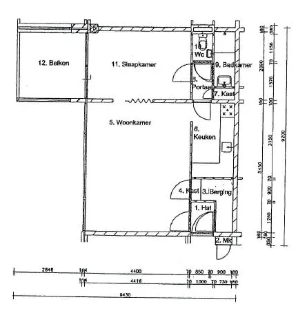
56.13m²

Woonoppervlakte

🛏️

2

Kamers

Leegstand

Status

🌟

D

Energielabel

Garietstraat 19 te Amersfoort 65+ woning (inwonende kinderen niet toegestaan)

Een seniorenwoning met één slaapkamer in een complex met complexbeheerder en gemeenschappelijke ruimte voor activiteiten. Het complex heeft een bewonerscommissie en soos-commissie. Het complex is in 2017 opgeknapt en onderhouden. Hierdoor is er een mooie buitenruimte (balkon) ontstaan.

In de woning is een huurboiler aanwezig hiervoor zult u zelf een huurcontract met Eneco moeten afsluiten. Het is een gasloos complex dit betekent dat u elektrisch moet koken. Tevens is de woning voorzien van een ruim balkon. De ramen in de woonkamer zijn voorzien van zonnescreens.

De woning wordt verwarmd via blokverwarming. Hiervoor betaald u een voorschot bedrag aan Omnia Wonen. Jaarlijks wordt dit bedrag met u afgerekend.

Omnia Wonen heeft een samenwerking met de Koperhorst. Door deze samenwerking zijn de woningen voorzien van een zorgcommunicatie systeem. Deze kan met een abonnement verbonden worden met de Koperhorst. Voor meer informatie neem dan contact op met Omnia Wonen.

Minimale leeftijd 65 jaar. Inwonende kinderen niet toegestaan.

Aan de verhuurprijs, plattegrond, en advertentie kunnen geen rechten worden ontleend.

Bezichtiging

Bij deze woning vindt een groep bezichtiging plaats.

Benodigde documenten voor verhuring (uiterlijk binnen 2 werkdagen naar aanbieding bij ons binnen zijn)

Onderstaande documenten hebben wij nodig voor de verhuring. Deze kunt u uploaden op uw eigen Woningnet account. Of u kunt mailen naar Info@omniawonen.nl onder vermelding van het adres (let op alleen als u een aanbieding krijgt)

  1. De meest recente inkomensverklaring van de Belastingdienst (of meest recente definitieve aanslag inkomstenbelasting) van u en van uw eventuele partner (ook als deze geen eigen inkomen heeft) U moet zelf uw BSN nummer wegstrepen. Anders mogen wij deze niet behandelen.
  2. BRP van de gezinssamenstelling + woonhistorie op te vragen bij de gemeente. Woonhistorie is ook op te vragen met uw DIGID via mijnoverheid.nl
  3. Een verhuurdersverklaring. Deze kunt u opvragen bij uw huidige of uw laatste verhuurder. Heeft u een koopwoning, dan zouden wij graag drie afschriften van de hypotheek willen zien.
  4. Antwoord en gegevensformulier te bereiken via onderstaande link. https://www.omniawonen.nl/wp-content/uploads/2021/04/Acceptatie-en-gegevensformulier-Amersfoort-Woudenberg.pdf
  5. Bent u gescheiden, niet langer geregistreerd partners of woont u niet meer samen? Dan mag u uw kinderen alleen op uw inschrijving vermelden als zij hun hoofdverblijfplaats bij u hebben of als er sprake is van co-ouderschap. In geval van co-ouderschap mogen beide ouders de kinderen op hun inschrijving vermelden. Op het moment dat u een woning accepteert, vraagt de verhuurder u om aan te tonen dat de kinderen terecht op uw inschrijving staan vermeld. Dit kan aan de hand van een gerechtelijke uitspraak, een echtscheidingsconvenant of een ouderschapsplan.

📋 Specificaties

Type

Woonruimte

Soort woning

Portiekflat

Verdieping

2

Lift

✅ Ja

🏠 Vertrekken

Badkamer 1x (1.9m²)
Berging 1x (2m²)
Keuken 1x (5.7m²)
Slaapkamer 1x (11.8m²)
Woonkamer 1x (24m²)

💰 Prijsopbouw

Niet subsidiabele servicekosten €100,28
Warmte €65,00

📍 Locatie

Kaart laden...

🚉

OV

5 min lopen naar station

🏬

Winkels

2 min lopen

🏫

Scholen

Meerdere binnen 1km

🌳

Park

10 min lopen

✅ Selectiecriteria

Je inkomen is niet hoger dan € 51537
Je inkomen is niet hoger dan € 56910
Meld je aan