
Garietstraat 169
3813BJ Amersfoort, Vuurtoren
€850,23
Per maand
Interesse in dit type woning?
Ontvang direct bericht als er nieuwe woningen beschikbaar komen die bij uw woonwensen passen.
Meld je aan voor woningalertsGratis en vrijblijvend
Historische informatie
Deze huurwoning was beschikbaar voor reacties van 09-10-2025 tot 13-10-2025. Deze woning is niet meer beschikbaar voor nieuwe reacties.
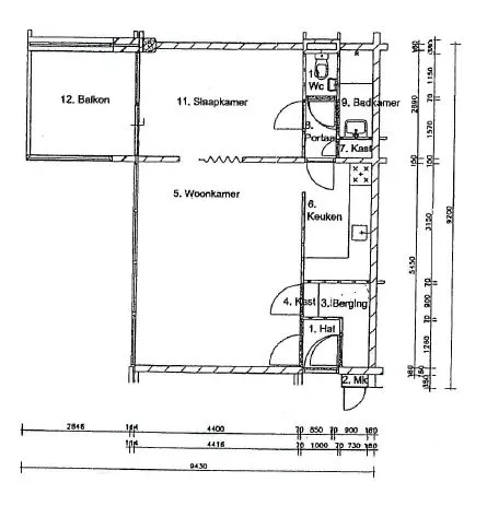
53.91m²
Woonoppervlakte
2
Kamers
Leegstand
Status
D
Energielabel
Omschrijving
Aangeboden door Omnia Wonen EemvalleiEen seniorenwoning met één slaapkamer in een complex met complexbeheerder en gemeenschappelijke ruimte voor activiteiten. Het complex heeft een bewonerscommissie en soos-commissie. Het complex is in 2017 opgeknapt en onderhouden. Hierdoor is er een mooie buitenruimte (balkon) ontstaan.
In de woning is een huurboiler aanwezig hiervoor zult u zelf een huurcontract met Eneco moeten afsluiten. Het is een gasloos complex dit betekent dat u elektrisch moet koken. Tevens is de woning voorzien van een ruim balkon. De ramen in de woonkamer zijn voorzien van zonnescreens.
De woning wordt verwarmd via blokverwarming. Hiervoor betaald u een voorschot bedrag aan Omnia Wonen. Jaarlijks wordt dit bedrag met u afgerekend.
Omnia Wonen heeft een samenwerking met de Koperhorst. Door deze samenwerking zijn de woningen voorzien van een zorgcommunicatie systeem. Deze kan met een abonnement verbonden worden met de Koperhorst. Voor meer informatie neem dan contact op met Omnia Wonen.
Minimale leeftijd 65 jaar. Inwonende kinderen niet toegestaan.
Aan de verhuurprijs, plattegrond, en advertentie kunnen geen rechten worden ontleend.
In overleg met de vertrekkende huurder zijn er diverse zaken beschikbaar voor overname.
Bezichtiging
Bij deze woning vindt een bezichtiging plaats.
Benodigde documenten voor verhuring (uiterlijk binnen 2 werkdagen naar aanbieding bij ons binnen zijn)
Onderstaande documenten hebben wij nodig voor de verhuring. Deze kunt u uploaden op uw eigen Woningnet account. Of u kunt mailen naar Info@omniawonen.nl onder vermelding van het adres (let op alleen als u een aanbieding krijgt)
- De meest recente inkomensverklaring van de Belastingdienst (of meest recente definitieve aanslag inkomstenbelasting) van u en van uw eventuele partner (ook als deze geen eigen inkomen heeft) U moet zelf uw BSN nummer wegstrepen. Anders mogen wij deze niet behandelen.
- BRP van de gezinssamenstelling + woonhistorie op te vragen bij de gemeente. Woonhistorie is ook op te vragen met uw DIGID via mijnoverheid.nl
- Een verhuurdersverklaring. Deze kunt u opvragen bij uw huidige of uw laatste verhuurder. Heeft u een koopwoning, dan zouden wij graag drie afschriften van de hypotheek willen zien.
- Antwoord en gegevensformulier te bereiken via onderstaande link. https://www.omniawonen.nl/wp-content/uploads/2021/04/Acceptatie-en-gegevensformulier-Amersfoort-Woudenberg.pdf
- Bent u gescheiden, niet langer geregistreerd partners of woont u niet meer samen? Dan mag u uw kinderen alleen op uw inschrijving vermelden als zij hun hoofdverblijfplaats bij u hebben of als er sprake is van co-ouderschap. In geval van co-ouderschap mogen beide ouders de kinderen op hun inschrijving vermelden. Op het moment dat u een woning accepteert, vraagt de verhuurder u om aan te tonen dat de kinderen terecht op uw inschrijving staan vermeld. Dit kan aan de hand van een gerechtelijke uitspraak, een echtscheidingsconvenant of een ouderschapsplan.
📋 Specificaties
Type
Woonruimte
Soort woning
Portiekflat
Verdieping
4
Lift
✅ Ja
🏠 Vertrekken
💰 Prijsopbouw
📍 Locatie
OV
5 min lopen naar station
Winkels
2 min lopen
Scholen
Meerdere binnen 1km
Park
10 min lopen