
Van Ostadeplein 18
3817PK Amersfoort, Vermeerkwartier-West
€736,92
Per maand
Interesse in dit type woning?
Ontvang direct bericht als er nieuwe woningen beschikbaar komen die bij uw woonwensen passen.
Meld je aan voor woningalertsGratis en vrijblijvend
Historische informatie
Deze huurwoning was beschikbaar voor reacties van 14-10-2025 tot 20-10-2025. Deze woning is niet meer beschikbaar voor nieuwe reacties.
96.78m²
Woonoppervlakte
5
Kamers
Leegstand
Status
A
Energielabel
Omschrijving
Aangeboden door Omnia Wonen EemvalleiVan Ostadeplein 18 te Amersfoort (geschikt voor minimaal een twee- of meerpersoonshuishouden)
In het karakteristieke Vermeerkwartier staat deze fraaie vooroorlogse woning, die recentelijk gerenoveerd is.
Verduurzaming
Vorig jaar is de woning verduurzaamd. Het dak is opnieuw geïsoleerd, en op het dak zijn 6 zonnepanelen geplaatst. De ramen zijn voorzien van HR++ isolatieglas. Daarnaast is een warmteterugwinningssysteem geïnstalleerd, dat zorgt voor de aanvoer van frisse lucht en de afvoer van vervuilde lucht vanuit warme vertrekken zoals de woonkamer en keuken.
De keuken, badkamer en het toilet zijn vernieuwd.
Houd er rekening mee dat u zelf nog werkzaamheden moet uitvoeren in de woning. Denk hierbij aan schilderen en behangen.
Er zijn geen overnames aanwezig, wat betekent dat u zelf de vloer en wandafwerking zult moeten regelen.
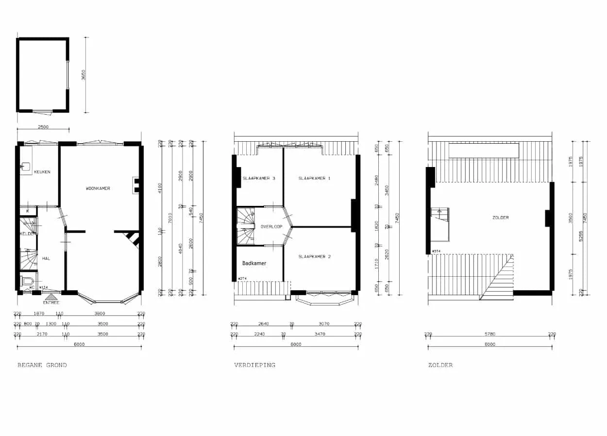
Indeling van de woning
Via de entree en hal met toiletruimte betreedt u de woonkamer. De keuken bevindt zich aan het einde van de hal. Op de eerste verdieping zijn drie slaapkamers en de badkamer te vinden. De tweede verdieping bestaat uit een zolderruimte, bereikbaar via een vaste trap. De zolder is geen slaapvertrek, maar wel geïsoleerd en voorzien van een klein dakraampje.
Aan de plattegrond en foto’s kunnen geen rechten worden ontleend.
Overnames
Er zijn geen overnames beschikbaar in de woning.
Tuin
Achter en voor de woning ligt een ruime tuin, waarvan het onderhoud de verantwoordelijkheid is van de huurder. We verwachten dat de huurder de tuin goed verzorgt en netjes houdt. Wat wij hieronder verstaan, kunt u vinden via de volgende link:
Bij acceptatie van de woning draagt u zorg voor het onderhoud van de tuin.
Bezichtiging
De bezichtiging is verplicht.
Benodigde documenten voor verhuring (uiterlijk binnen 2 werkdagen naar aanbieding bij ons binnen zijn)
Onderstaande documenten hebben wij nodig voor de verhuring. Deze kunt u uploaden op uw eigen Woningnet account. Of u kunt mailen naar Info@omniawonen.nl onder vermelding van het adres (let op alleen als u een aanbieding krijgt)
- De meest recente inkomensverklaring van de Belastingdienst 2023 of 2024 (of meest recente definitieve aanslag inkomstenbelasting) van u en van uw eventuele partner (ook als deze geen eigen inkomen heeft) U moet zelf uw BSN nummer wegstrepen. Anders mogen wij deze niet behandelen.
- BRP van de gezinssamenstelling + woonhistorie op te vragen bij de gemeente. Woonhistorie is ook op te vragen met uw DIGID via mijnoverheid.nl
- Een verhuurdersverklaring. Deze kunt u opvragen bij uw huidige of uw laatste verhuurder. Heeft u een koopwoning, dan zouden wij graag drie afschriften van de hypotheek willen zien.
- Antwoord en gegevensformulier digitaal te bereiken via https://www.omniawonen.nl/acceptatieformulier/of op papier via: Acceptatie-en-gegevensformulier.pdf (omniawonen.nl)
📋 Specificaties
Type
Woonruimte
Soort woning
Tussenwoning
Lift
❌ Nee
🏠 Vertrekken
💰 Prijsopbouw
📍 Locatie
OV
5 min lopen naar station
Winkels
2 min lopen
Scholen
Meerdere binnen 1km
Park
10 min lopen