Terug Van Verschuer Brantslaan 22
Van Verschuer Brantslaan 22 2121EZ Bennebroek

Van Verschuer Brantslaan 22
2121EZ Bennebroek, Oude Kern Bennebroek

€962,03

Per maand

Interesse in dit type woning?

Ontvang direct bericht als er nieuwe woningen beschikbaar komen die bij uw woonwensen passen.

Meld je aan voor woningalerts

Gratis en vrijblijvend

Historische informatie

Deze huurwoning was beschikbaar voor reacties van 17-03-2026 tot 20-03-2026. Deze woning is niet meer beschikbaar voor nieuwe reacties.

🏠

66m²

Woonoppervlakte

🛏️

4

Kamers

Leegstand

Status

🌟

A

Energielabel

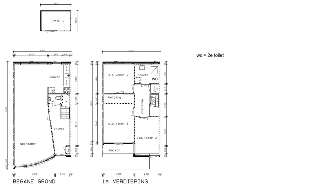
Lichte eengezinswoning met woonkamer met open keuken, drie slaapkamers, balkon én een voor- en achtertuin!

LET OP! Belangrijke wijziging als je een woning zoekt
Ga je een woning bezichtigen, verzamel alvast je gegevens. Ook als je geen eerste kandidaat bent. Je hebt maar een paar dagen de tijd.  Per 2 februari werken alle woningcorporaties in de regio op dezelfde manier. Dit maakt het toewijzen van een woning duidelijker en makkelijker voor iedereen. Lees meer over wat dit voor jou betekent op deze informatiepagina van MijnWoonservice.

Bezichtiging en intakegesprek
De bezichtiging is ingepland op 23 maart 2026 om 10.30 uur (onder voorbehoud). De eerste vijftien kandidaten worden via Woonservice uitgenodigd voor bezichtiging. Kom je kijken? Verzamel dan alvast je gegevens. 
Het telefonisch intake gesprek is ingepland op 26 maart 2026 om 14:00 uur.

Woning

  • Open keuken
  • Koken op elektra
  • Toilet op begane grond
  • Badkamer met tweede toilet
  • Badkamer met wasmachine opstelling
  • Schuur in de achtertuin
  • Nieuw keukenblok
  • Via slaapkamer 1 betreed u het balkon (voorzijde)
  • Voortuin, ligging op het noorden
  • Achtertuin, ligging op het zuiden
  • Geen zolder
  • Mechanische ventilatie
  • Zonnepanelen voor eigen gebruik
  • Verwarming via eigen cv-ketel
  • Gratis parkeren
  • Bekijk voor meer informatie de kenmerken en de plattegrond van de woning

Schenkingen
De volgende zaken zijn als schenking achtergebleven in de woning:

  • Elektrische zonwering met afstandsbediening aan achtergevel
  • Toiletrolhouder
  • Planken in kast slaapkamer twee

Bij ondertekening van de huurovereenkomst ben je eigenaar. Gaan ze kapot, dan zijn de kosten voor jou en moet je zelf zorgen dat het wordt gerepareerd of vervangen. Verhuis je? Dan moet je deze schenking(en) verwijderen.

Oplevering
Pre Wonen levert iedere woning op met basiskwaliteit: schoon, heel en veilig. Een bestaande woning heeft altijd gebruikssporen van voorgaande huurder(s). Zelf knapt u de woning op naar uw zin en smaak. Denk hierbij aan het leggen van vloeren (minimaal 10 decibel reducerend), schilderen/behangen van muren, deuren, (raam)kozijnen en plafonds. Dit mag u van uw nieuwe huurwoning verwachten - Pré Wonen.

De oplevering van de woning kan afwijken van de advertentietekst, de plattegrond, de foto’s en de bezichtiging in verband met eventuele werkzaamheden. Aan deze advertentie kunt u geen rechten ontlenen.

Buurt
Valt onder de Gemeente Bloemendaal
Groene wijk
Boodschappen in kleine centrum van Bennebroek
In de buurt zitten wel kapperszaken, een ijssalon en een aantal restaurants.
Centrum van Haarlem, strand en de zee binnen 20 minuten met de auto bereikbaar

📋 Specificaties

Type

Woonruimte

Soort woning

Tussenwoning

Verdieping

0

Lift

❌ Nee

🏠 Vertrekken

Slaapkamer 3x (26.53m²)
Woonkamer 1x (27.9m²)

💰 Prijsopbouw

Niet subsidiabele servicekosten €29,10

📍 Locatie

Kaart laden...

🚉

OV

5 min lopen naar station

🏬

Winkels

2 min lopen

🏫

Scholen

Meerdere binnen 1km

🌳

Park

10 min lopen

✅ Selectiecriteria

Voor de inkomenseisen die voor deze woning gelden verwijzen wij u naar de pagina Passend toewijzen
Meld je aan