
Talmastraat 83
3752BE Bunschoten-Spakenburg, Spakenburg
€1.120,75
Per maand
Interesse in dit type woning?
Ontvang direct bericht als er nieuwe woningen beschikbaar komen die bij uw woonwensen passen.
Meld je aan voor woningalertsGratis en vrijblijvend
Historische informatie
Deze huurwoning was beschikbaar voor reacties van 10-10-2025 tot 27-10-2025. Deze woning is niet meer beschikbaar voor nieuwe reacties.
86m²
Woonoppervlakte
3
Kamers
Leegstand
Status
A
Energielabel
Omschrijving
Aangeboden door G&O EemvalleiRuime maisonnette woning voor senioren gelegen op de tweede verdieping met balkon en ruime zolderkamer op de tweede woonlaag. Een bushalte is op loopafstand bereikbaar.
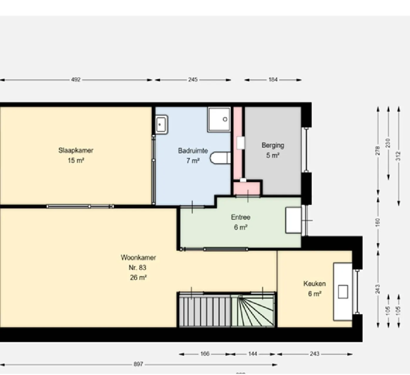
Dit appartement heeft een woonkamer (ca. 22m²), open keuken (8m²) met zelf aangebrachte keukenblok inclusief apparatuur ( keukenblok wordt ter overname aangeboden door huurder), wasruimte (ca. 4m²), een slaapkamer op de eerste woonlaag (ca. 15m²) met toegang tot de badkamer met toilet, wastafel en douche. Op de 2e verdieping is een ruime zolderkamer (ca. 32m²) en een bergruimte (ca. 6m²) aanwezig. De woning is voorzien van vloerverwarming, mechanisch ventilatiesysteem, videofooninstallatie en elektrisch bedienbare zonwering. Bij de voordeur zit een klein terras als buitenruimte.
Het appartement is bereikbaar met een lift. Het trappenhuis is vorstvrij verwarmd.
In de onderbouw is een gezamenlijke fietsenstalling aanwezig.
Inkomen
Voor deze woning is een minimaal verzamelinkomen vereist van € 49.670 voor eenpersoonshuishoudens en € 54.848 voor tweepersoonshuishoudens.
Toewijzing
Voor deze woning benaderen wij de kandidaat die als eerste reageert. Kandidaten vanaf 65 jaar krijgen voorrang.
Wij behouden ons altijd het recht van gunning voor. Een kredietcheck is onderdeel van de toewijzingsprocedure.
Let op! Deze woning wordt toegewezen via zorgbemiddeling.
De opleverdatum en huurprijs zijn onder voorbehoud.
Aan deze advertentie kunnen geen rechten worden ontleend.
Meer informatie ?
Voor meer informatie kunt u contact opnemen met onze afdeling Wonen.
Telefoon : 035-6726613
Mail : n.azmani@gooienom.nl
Internet : www.gooienom.nl
📋 Specificaties
Type
Woonruimte
Soort woning
Tussenwoning
Verdieping
2
Lift
✅ Ja
🏠 Vertrekken
💰 Prijsopbouw
📍 Locatie
OV
5 min lopen naar station
Winkels
2 min lopen
Scholen
Meerdere binnen 1km
Park
10 min lopen