Wielewaalhof 4 6669EB Dodewaard

Wielewaalhof 4
6669EB Dodewaard, Kom Dodewaard met Hien

€790,50

Per maand

Interesse in dit type woning?

Ontvang direct bericht als er nieuwe woningen beschikbaar komen die bij uw woonwensen passen.

Meld je aan voor woningalerts

Gratis en vrijblijvend

Historische informatie

Deze huurwoning was beschikbaar voor reacties van 27-10-2025 tot 04-11-2025. Deze woning is niet meer beschikbaar voor nieuwe reacties.

🏠

102m²

Woonoppervlakte

🛏️

4

Kamers

Leegstand

Status

🌟

C

Energielabel

Deze woning aan de Wielewaalhof 4 biedt een fijne en praktische indeling, met voldoende leefruimte voor een gezin of stel. De woning beschikt over meerdere slaapkamers en twee toiletten, wat zorgt voor extra comfort in het dagelijks gebruik.

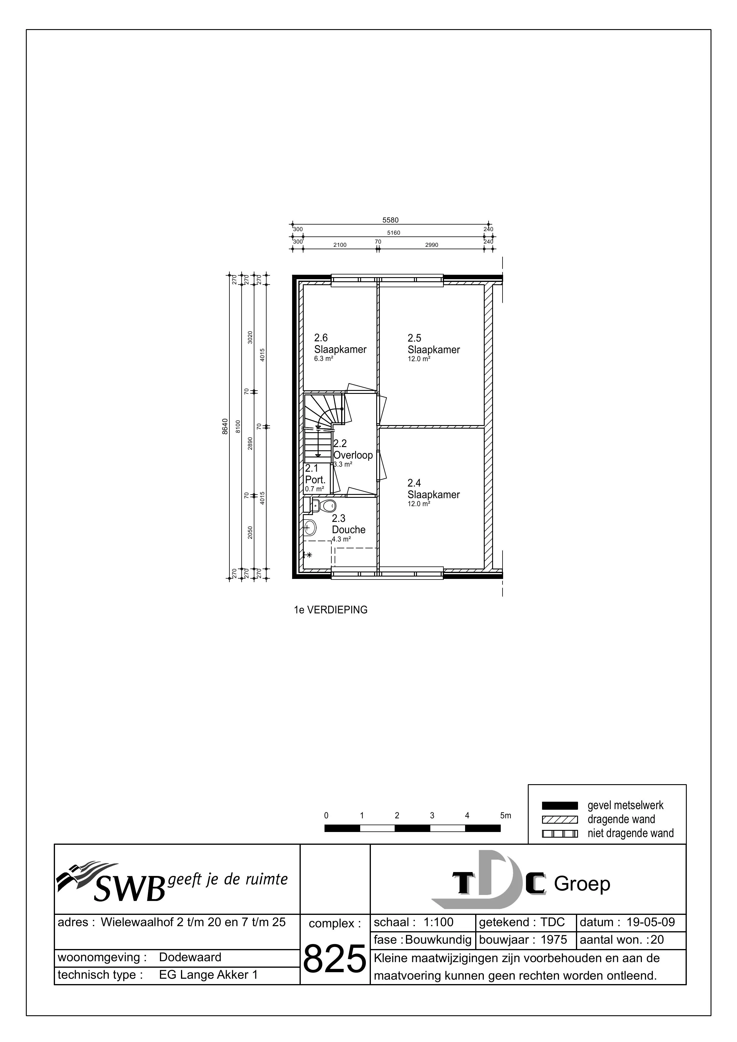
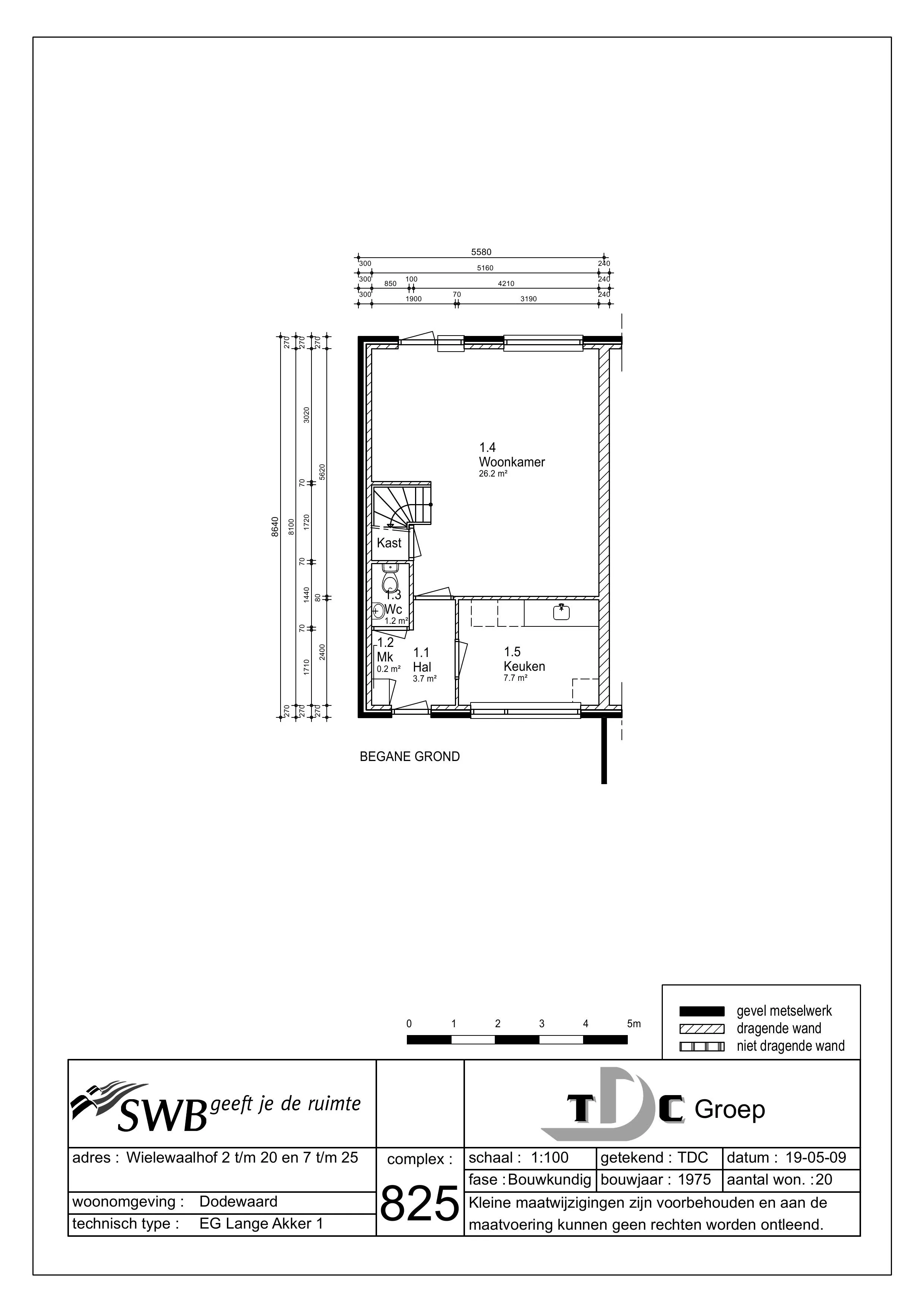
Indeling van de woning

  • Woonkamer: Ruime en lichte woonkamer met uitzicht op de tuin.

  • Keuken: Functionele keuken met voldoende kastruimte en ruimte voor eigen apparatuur.

  • Slaapkamers: Drie slaapkamers, ideaal voor een gezin of om één kamer te gebruiken als werk- of hobbyruimte.

  • Badkamer: Voorzien van douche, wastafel en toilet.

  • Toilet: Separaat toilet aanwezig op de begane grond.

  • Zolder: Bereikbaar via een vaste trap en geschikt als extra bergruimte.

  • Tuin: De woning beschikt over een achtertuin met ruimte om buiten te zitten of te tuinieren.

Voorzieningen in de buurt

De woning ligt in een rustige woonwijk in Dodewaard, met voorzieningen zoals supermarkt, huisarts, openbaar vervoer en scholen in de directe omgeving.
Voor meer informatie over de buurt kunt u terecht op www.postcodebijadres.nl. Bekijk ook de video over Dodewaard via deze link.

Overname van spullen

Eventuele overname van spullen kan besproken worden tijdens de bezichtiging.

Energievoorzieningen

De woning beschikt over een eigen cv-installatie.

Voor wie is deze woning geschikt?

Deze woning is geschikt voor huishoudens die op zoek zijn naar een praktische en comfortabele woning met meerdere slaapkamers.

Hoe verloopt het proces?

Na sluiting van de reactietermijn ontvangen de eerste kandidaten een uitnodiging voor de bezichtiging. Indien zij geen belangstelling hebben of niet voldoen aan de voorwaarden, worden andere kandidaten benaderd.

Voorwaarden

Bij acceptatie van de woning moet u uw inkomen aantonen met een inkomensverklaring over 2023 of 2024. Dit geldt ook voor een eventuele mede-inschrijver en volwassen medebewoners.

  • Vraag uw inkomensverklaring eenvoudig aan via www.mijnbelastingdienst.nl met uw DigiD.

  • Geen DigiD? Bel de Belastingdienst via 0800-0543 en houd uw burgerservicenummer bij de hand.

📋 Specificaties

Type

Woonruimte

Soort woning

Tussenwoning

Lift

❌ Nee

🏠 Vertrekken

Slaapkamer 3x (30m²)
Woonkamer 1x (26m²)

💰 Prijsopbouw

Niet subsidiabele servicekosten €9,99

📍 Locatie

Kaart laden...

🚉

OV

5 min lopen naar station

🏬

Winkels

2 min lopen

🏫

Scholen

Meerdere binnen 1km

🌳

Park

10 min lopen

✅ Selectiecriteria

is groter of gelijk aan 2
Je inkomen is niet hoger dan € 49669
Je inkomen is niet hoger dan € 54847
Meld je aan