Terug Raadhuisstraat 67
Raadhuisstraat 67 6711DS Ede

Raadhuisstraat 67
6711DS Ede, Centrum Ede

€1.124,75

Per maand

Interesse in dit type woning?

Ontvang direct bericht als er nieuwe woningen beschikbaar komen die bij uw woonwensen passen.

Meld je aan voor woningalerts

Gratis en vrijblijvend

Historische informatie

Deze huurwoning was beschikbaar voor reacties van 15-02-2026 tot 23-02-2026. Deze woning is niet meer beschikbaar voor nieuwe reacties.

🏠

99m²

Woonoppervlakte

🛏️

3

Kamers

Leegstand

Status

🌟

A

Energielabel

Prettig en centraal wonen 
Wooncomplex Vleugelakkers ligt in het centrum van Ede. U loopt hier binnen een paar minuten naar winkels en gezellige horecazaken. In de nabije omgeving vindt u ook het treinstation van Ede Centrum, een bushalte, gezondheidscentrum en andere voorzieningen. 
 
De woningen   
Het wooncomplex telt 38 appartementen verdeeld over 4 woonlagen, allen bereikbaar via een lift. De 32 huur- en 6 koopappartementen zijn verdeeld over 2 gebouwen Villa Siena en Villa Betula.  
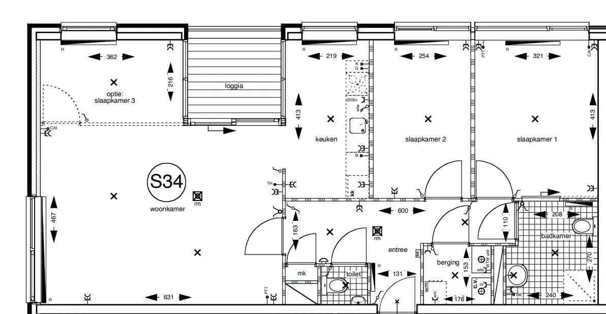
De driekamerappartementen hebben een oppervlakte van 97m² en de vierkamerappartementen 104m². Elke woning heeft een een balkon of patio en zowel een toilet in de hal als in de badkamer. De woningen zijn voorzien van hoog rendement c.v. ketels en mechanische ventilatie. De keuken is uitgerust met een elektrische kookplaat en afzuigkap.  

Voorzieningen 
Bewoners kunnen gebruik maken van een gemeenschappelijke recreatieruimte.   
Onder het wooncomplex is een overdekte parkeerkelder aanwezig. LET OP: de vrijkomende woning heeft geen eigen parkeerplaats. U kunt op een wachtlijst geplaatst worden en bent dan de eerst wachtende. Elke woning heeft een eigen berging in de kelder.  

Toewijzing 
Huiswaarts sorteert de ranglijst op volgorde van het moment van reageren. Dit is niet hoe Woonzorg Nederland de woning toewijst. Nadat het sluiten van de advertentietermijn, nodigen wij de 5 kandidaten met de langste inschrijfduur uit voor een vrijblijvende bezichtiging.   

📋 Specificaties

Type

Woonruimte

Soort woning

Galerijflat

Verdieping

3

Lift

✅ Ja

🏠 Vertrekken

Toilet 1x (1m²)
Berging 1x (2m²)
Badkamer 1x (6m²)
Balkon 1x (6m²)
Overig vertrek 1x (8m²)
Keuken 1x (9m²)
Hal 1x (10m²)
Slaapkamer 2x (23m²)
Woonkamer 1x (38m²)

💰 Prijsopbouw

Niet subsidiabele servicekosten €79,19

📍 Locatie

Kaart laden...

🚉

OV

5 min lopen naar station

🏬

Winkels

2 min lopen

🏫

Scholen

Meerdere binnen 1km

🌳

Park

10 min lopen

✅ Selectiecriteria

is kleiner of gelijk aan 2
€ 99000
Je inkomen is hoger dan € 51537
Je inkomen is hoger dan € 56910
Meld je aan