Terug Stationsstraat 12 B5
Stationsstraat 12 B5 9711AS Groningen

Stationsstraat 12 B5
9711AS Groningen, Binnenstad-Zuid

€887,77

Per maand

Interesse in dit type woning?

Ontvang direct bericht als er nieuwe woningen beschikbaar komen die bij uw woonwensen passen.

Meld je aan voor woningalerts

Gratis en vrijblijvend

Historische informatie

Deze huurwoning was beschikbaar voor reacties van 13-04-2026 tot 20-04-2026. Deze woning is niet meer beschikbaar voor nieuwe reacties.

🏠

11.91m²

Woonoppervlakte

🛏️

2

Kamers

Leegstand

Status

🌟

A

Energielabel

Knus, maar gehorig appartement (voor een jongere tot 23 jaar) met 1 slaapkamer op de 2e woonlaag in het centrum. Gelet op de gehorigheid zijn we op zoek naar een rustig persoon. U woont dichtbij het station, winkels en uitgaansgelegenheden. De huurprijs is inclusief een voorschot van € 150,00 per maand aan stookkosten. 

De huuringangsdatum is 28 april 2026.

Minimaal inkomen voor deze woning:
• geen eisen
Maximaal inkomen voor deze woning (dit geldt niet voor wijkvernieuwingsurgenties en rolstoelindicaties):
• Voor 1 persoon € 51.537,-
• Voor 2 of meer personen € 56.910,-

 

 

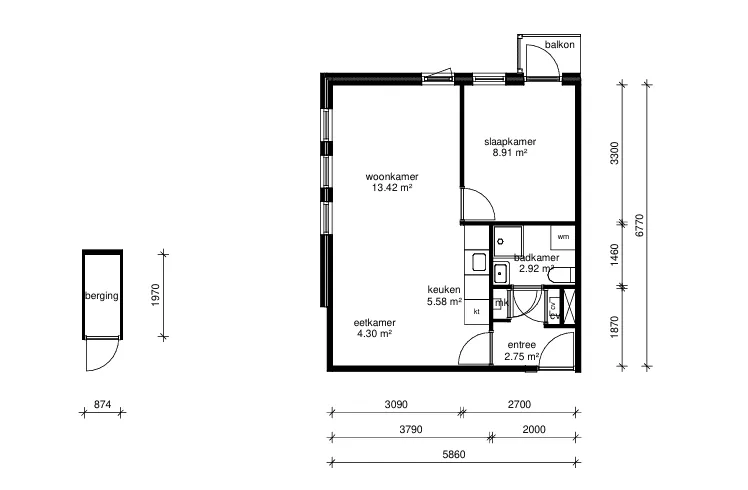
📋 Specificaties

Type

Woonruimte

Soort woning

Portiekwoning

Verdieping

2

Lift

❌ Nee

🏠 Vertrekken

Badkamer 1x (3m²)
Keuken 1x (5.58m²)
Slaapkamer 1x (8.91m²)
Woonkamer 1x (23.26m²)

💰 Prijsopbouw

Niet subsidiabele servicekosten €24,75
Gas €150,00

📍 Locatie

Kaart laden...

🚉

OV

5 min lopen naar station

🏬

Winkels

2 min lopen

🏫

Scholen

Meerdere binnen 1km

🌳

Park

10 min lopen

✅ Selectiecriteria

Uw inkomen is niet hoger dan € 51537
Uw inkomen is niet hoger dan € 56910
tot 23 jaar
18 jaar
Meld je aan