Coehoornsingel 107 9711BR Groningen

Coehoornsingel 107
9711BR Groningen, Binnenstad-Zuid

€727,70

Per maand

Interesse in dit type woning?

Ontvang direct bericht als er nieuwe woningen beschikbaar komen die bij uw woonwensen passen.

Meld je aan voor woningalerts

Gratis en vrijblijvend

Historische informatie

Deze huurwoning was beschikbaar voor reacties van 09-04-2026 tot 14-04-2026. Deze woning is niet meer beschikbaar voor nieuwe reacties.

🏠

55.23m²

Woonoppervlakte

🛏️

3

Kamers

Leegstand

Status

🌟

A

Energielabel

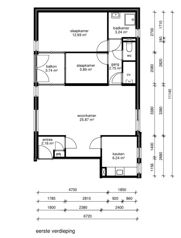
Leuke woning met 2 slaapkamers (waarvan 1 hele kleine) en een balkon. De woning ligt op de 2e woonlaag. Hier woont u in het gezellige centrum en toch redelijk rustig. In de omgeving bevinden zich diverse voorzieningen, waaronder winkels en het station dat op loopafstand ligt. 

De woning is per 22 april 2026 te huur.

Minimaal inkomen voor deze woning:
• geen eisen
Maximaal inkomen voor deze woning (dit geldt niet voor wijkvernieuwingsurgenties en rolstoelindicaties):
• Voor 1 persoon € 51.537,-
• Voor 2 of meer personen € 56.910,-

📋 Specificaties

Type

Woonruimte

Soort woning

Portiekflat

Verdieping

2

Lift

❌ Nee

🏠 Vertrekken

Toilet 1x (1.3m²)
Badkamer 1x (3.24m²)
Slaapkamer 2x (18.58m²)
Keuken 1x (6.24m²)
Woonkamer 1x (25.87m²)

💰 Prijsopbouw

Niet subsidiabele servicekosten €14,68

📍 Locatie

Kaart laden...

🚉

OV

5 min lopen naar station

🏬

Winkels

2 min lopen

🏫

Scholen

Meerdere binnen 1km

🌳

Park

10 min lopen

✅ Selectiecriteria

Uw inkomen is niet hoger dan € 51537
Uw inkomen is niet hoger dan € 56910
18 jaar
Woningzoekenden met een Proefwonenurgentie of Woonkansurgentie kunnen geen reactie plaatsen
Meld je aan