Havenstraat 43 9712TA Groningen

Havenstraat 43
9712TA Groningen, Hortusbuurt-Ebbingekwartier

€810,99

Per maand

Interesse in dit type woning?

Ontvang direct bericht als er nieuwe woningen beschikbaar komen die bij uw woonwensen passen.

Meld je aan voor woningalerts

Gratis en vrijblijvend

Historische informatie

Deze huurwoning was beschikbaar voor reacties van 29-12-2025 tot 05-01-2026. Deze woning is niet meer beschikbaar voor nieuwe reacties.

🏠

59.79m²

Woonoppervlakte

🛏️

3

Kamers

Leegstand

Status

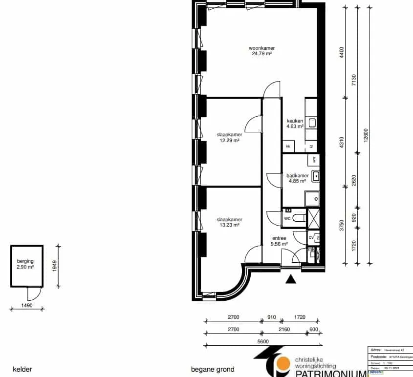
Leuke woning met ruime woonkamer en 2 slaapkamers in een mooi complex in het Centrum van de stad Groningen. Deze woning bevindt zich op de begane grond. Diverse voorzieningen zijn in de buurt aanwezig. Het Noorderplantsoen is op loopafstand en binnen 5 minuten bent u op de Grote markt.

De nieuwe huuringangsdatum is per 6 februari 2026.

Minimaal inkomen voor deze woning:
• Voor 1 persoon: € 29.400,- 
• Voor 2 of meer personen (inclusief inwonende kinderen): € 39.925,-
Maximaal inkomen voor deze woning (dit geldt niet voor wijkvernieuwingsurgenties en rolstoelindicaties):
• Voor 1 persoon € 51.537
• Voor 2 of meer personen € 56.910

📋 Specificaties

Type

Woonruimte

Soort woning

Portiekflat

Verdieping

1

Lift

✅ Ja

🏠 Vertrekken

Toilet 1x (1.09m²)
Berging 1x (2.9m²)
Keuken 1x (4.63m²)
Badkamer 1x (4.85m²)
Slaapkamer 2x (25.52m²)
Woonkamer 1x (24.79m²)

💰 Prijsopbouw

Niet subsidiabele servicekosten €44,15

📍 Locatie

Kaart laden...

🚉

OV

5 min lopen naar station

🏬

Winkels

2 min lopen

🏫

Scholen

Meerdere binnen 1km

🌳

Park

10 min lopen

✅ Selectiecriteria

Uw inkomen is passend
Uw inkomen is niet hoger dan € 51537
Uw inkomen is niet hoger dan € 56910
18 jaar
Meld je aan