
Noorderhaven 27 -14
9712VG Groningen, Hortusbuurt-Ebbingekwartier
€892,22
Per maand
Interesse in dit type woning?
Ontvang direct bericht als er nieuwe woningen beschikbaar komen die bij uw woonwensen passen.
Meld je aan voor woningalertsGratis en vrijblijvend
Historische informatie
Deze huurwoning was beschikbaar voor reacties van 05-10-2025 tot 13-10-2025. Deze woning is niet meer beschikbaar voor nieuwe reacties.
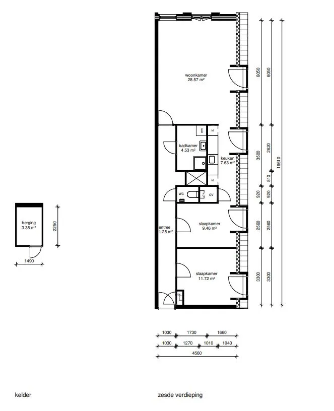
61.91m²
Woonoppervlakte
3
Kamers
Leegstand
Status
B
Energielabel
Omschrijving
Aangeboden door Patrimonium GroningenDeze mooie ruime karakteristieke woning ligt in het Albion complex, een voormalig pakhuis net achter de diepenring. De woning ligt op de 6e verdieping en heeft een grote woonkamer en 2 slaapkamers. Het noorderplantsoen en centrum liggen dichtbij. De woningen in dit complex beschikken over een privé berging en er is een lift aanwezig.
De nieuwe huuringangsdatum is 23 oktober 2025.
Minimaal inkomen voor deze woning:
• Voor 1 persoon: € 28.375,-
• Voor 1 persoon met AOW: € 27.775,-
• Voor 2 of meer personen (inclusief inwonende kinderen): € 38.500,-
• Voor 2 of meer personen met AOW: € 37.350,-
Maximaal inkomen voor deze woning (dit geldt niet voor wijkvernieuwingsurgenties en rolstoelindicaties):
• Voor 1 persoon € 49.669,-
• Voor 2 of meer personen € 54.847,-
📋 Specificaties
Type
Woonruimte
Soort woning
Portiekwoning
Verdieping
7
Lift
✅ Ja
🏠 Vertrekken
💰 Prijsopbouw
📍 Locatie
OV
5 min lopen naar station
Winkels
2 min lopen
Scholen
Meerdere binnen 1km
Park
10 min lopen