Noorderhaven 27 -19 9712VG Groningen

Noorderhaven 27 -19
9712VG Groningen, Hortusbuurt-Ebbingekwartier

€973,71

Per maand

Interesse in dit type woning?

Ontvang direct bericht als er nieuwe woningen beschikbaar komen die bij uw woonwensen passen.

Meld je aan voor woningalerts

Gratis en vrijblijvend

Historische informatie

Deze huurwoning was beschikbaar voor reacties van 23-02-2026 tot 02-03-2026. Deze woning is niet meer beschikbaar voor nieuwe reacties.

🏠

68.13m²

Woonoppervlakte

🛏️

3

Kamers

Leegstand

Status

🌟

A

Energielabel

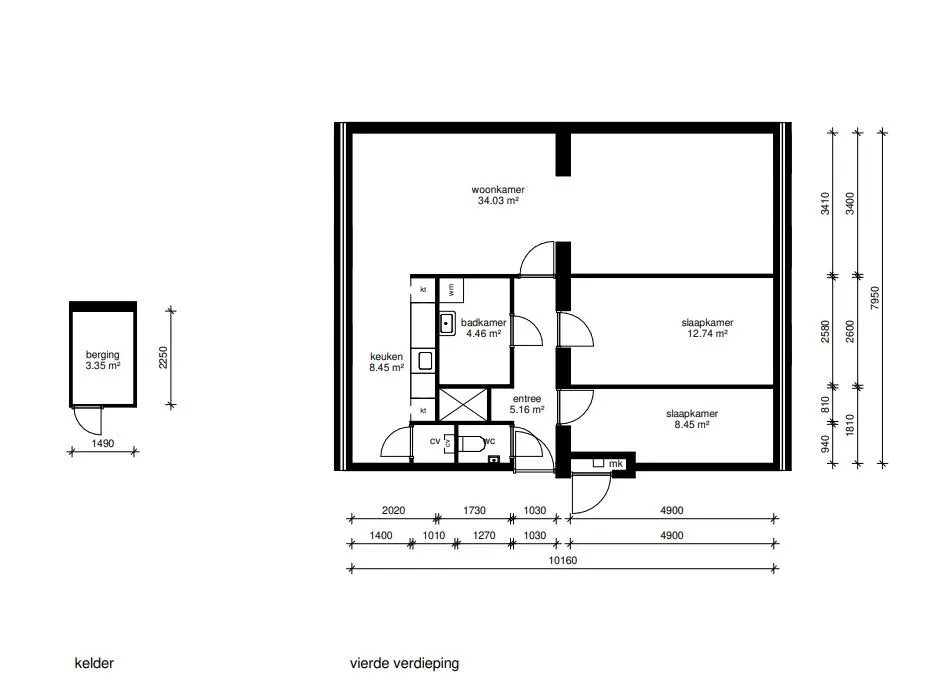
Deze mooie ruime karakteristieke woning ligt in het Albion complex, een voormalig pakhuis net achter de diepenring. De woning ligt op de vijfde verdieping en heeft een grote woonkamer en 2 slaapkamers. Het noorderplantsoen en centrum liggen dichtbij. De woningen in dit complex beschikken over een privé berging en er is een lift aanwezig.

De nieuwe huuringangsdatum is 27 maart 2026.

Minimaal inkomen voor deze woning:
• Voor 1 persoon: € 29.400,-
• Voor 1 persoon met AOW: € 28.775,-
• Voor 2 of meer personen (inclusief inwonende kinderen): € 39.925,-
• Voor 2 of meer personen met AOW: € 38.650,-
Maximaal inkomen voor deze woning (dit geldt niet voor wijkvernieuwingsurgenties en rolstoelindicaties):
• Voor 1 persoon € 51.537,-
• Voor 2 of meer personen € 56.910,-

📋 Specificaties

Type

Woonruimte

Soort woning

Portiekwoning

Verdieping

5

Lift

✅ Ja

🏠 Vertrekken

Berging 1x (3.35m²)
Badkamer 1x (4.46m²)
Keuken 1x (8.45m²)
Slaapkamer 2x (21.19m²)
Woonkamer 1x (34.03m²)

💰 Prijsopbouw

Niet subsidiabele servicekosten €40,78

📍 Locatie

Kaart laden...

🚉

OV

5 min lopen naar station

🏬

Winkels

2 min lopen

🏫

Scholen

Meerdere binnen 1km

🌳

Park

10 min lopen

✅ Selectiecriteria

Uw inkomen is passend
Uw inkomen is niet hoger dan € 51537
Uw inkomen is niet hoger dan € 56910
18 jaar
Woningzoekenden met een Proefwonenurgentie of Woonkansurgentie kunnen geen reactie plaatsen
Meld je aan