Holtstek 33 9713DB Groningen

Holtstek 33
9713DB Groningen, Damsterbuurt

€701,14

Per maand

Interesse in dit type woning?

Ontvang direct bericht als er nieuwe woningen beschikbaar komen die bij uw woonwensen passen.

Meld je aan voor woningalerts

Gratis en vrijblijvend

Historische informatie

Deze huurwoning was beschikbaar voor reacties van 22-09-2025 tot 30-09-2025. Deze woning is niet meer beschikbaar voor nieuwe reacties.

🏠

46.12m²

Woonoppervlakte

🛏️

2

Kamers

Leegstand

Status

🌟

A

Energielabel

Leuke benedenwoning met 1 slaapkamer en tuin. Diverse voorzieningen zijn in de buurt aanwezig. en binnen 5 minuten fietst u naar de binnenstad van Groningen.

De huuringangsdatum is 3 oktober 2025.

Minimaal inkomen voor deze woning:
• geen eisen
Maximaal inkomen voor deze woning (dit geldt niet voor wijkvernieuwingsurgenties en rolstoelindicaties):
• Voor 1 persoon € 49.669,-
• Voor 2 of meer personen € 54.847,-

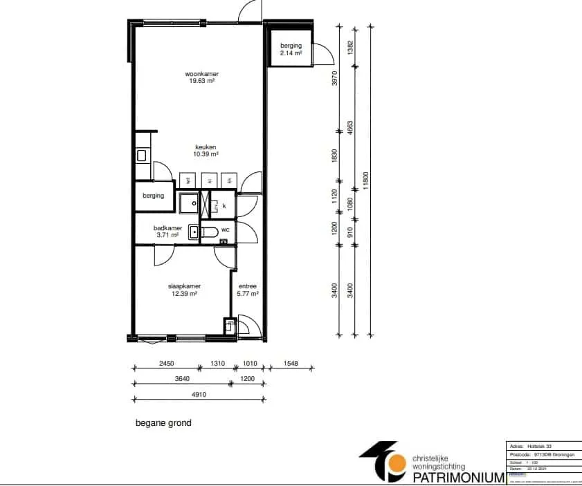
📋 Specificaties

Type

Woonruimte

Soort woning

Portiekwoning

Verdieping

1

Lift

❌ Nee

🏠 Vertrekken

Badkamer 1x (3.71m²)
Keuken 1x (10.39m²)
Slaapkamer 1x (12.39m²)
Woonkamer 1x (19.63m²)

💰 Prijsopbouw

Subsidiabele servicekosten €9,03
Niet subsidiabele servicekosten €9,15

📍 Locatie

Kaart laden...

🚉

OV

5 min lopen naar station

🏬

Winkels

2 min lopen

🏫

Scholen

Meerdere binnen 1km

🌳

Park

10 min lopen

✅ Selectiecriteria

Uw inkomen is niet hoger dan € 49669
Uw inkomen is niet hoger dan € 54847
Woningzoekenden met een Proefwonenurgentie of Woonkansurgentie kunnen geen reactie plaatsen
Meld je aan