Zagerij 42 9713DD Groningen

Zagerij 42
9713DD Groningen, Damsterbuurt

€732,21

Per maand

Interesse in dit type woning?

Ontvang direct bericht als er nieuwe woningen beschikbaar komen die bij uw woonwensen passen.

Meld je aan voor woningalerts

Gratis en vrijblijvend

Historische informatie

Deze huurwoning was beschikbaar voor reacties van 13-04-2026 tot 20-04-2026. Deze woning is niet meer beschikbaar voor nieuwe reacties.

🏠

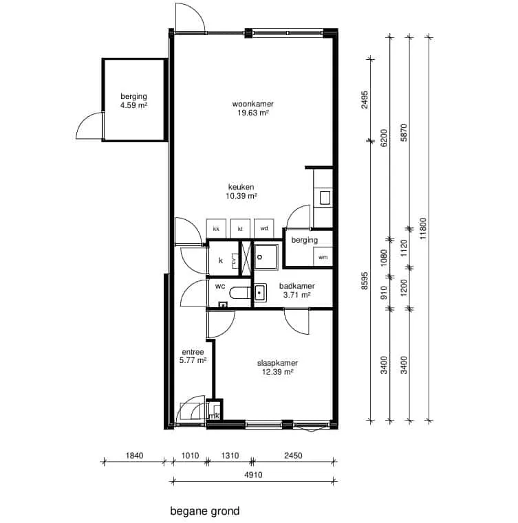
47.31m²

Woonoppervlakte

🛏️

2

Kamers

Leegstand

Status

Flatwoning met 1 slaapkamer op de 1e woonlaag in het Centrum van de stad. In deze woning wordt een w.c. renovatie uitgevoerd.

De huuringangsdatum is 23 april 2026.

Minimaal inkomen voor deze woning:
• geen eisen
Maximaal inkomen voor deze woning (dit geldt niet voor wijkvernieuwingsurgenties en rolstoelindicaties):
• Voor 1 persoon € 51.537,-
• Voor 2 of meer personen € 56.910,-

 

📋 Specificaties

Type

Woonruimte

Soort woning

Portiekflat

Verdieping

1

Lift

❌ Nee

🏠 Vertrekken

Toilet 1x (1.19m²)
Badkamer 1x (3.71m²)
Berging 1x (4.59m²)
Keuken 1x (10.39m²)
Slaapkamer 1x (12.39m²)
Woonkamer 1x (19.63m²)

💰 Prijsopbouw

Niet subsidiabele servicekosten €19,19

📍 Locatie

Kaart laden...

🚉

OV

5 min lopen naar station

🏬

Winkels

2 min lopen

🏫

Scholen

Meerdere binnen 1km

🌳

Park

10 min lopen

✅ Selectiecriteria

Uw inkomen is niet hoger dan € 51537
Uw inkomen is niet hoger dan € 56910
18 jaar
Woningzoekenden met een Proefwonenurgentie of Woonkansurgentie kunnen geen reactie plaatsen
Meld je aan