Balkgat 3 9713DH Groningen

Balkgat 3
9713DH Groningen, Damsterbuurt

€751,12

Per maand

Interesse in dit type woning?

Ontvang direct bericht als er nieuwe woningen beschikbaar komen die bij uw woonwensen passen.

Meld je aan voor woningalerts

Gratis en vrijblijvend

Historische informatie

Deze huurwoning was beschikbaar voor reacties van 09-11-2025 tot 14-11-2025. Deze woning is niet meer beschikbaar voor nieuwe reacties.

🏠

74m²

Woonoppervlakte

🛏️

4

Kamers

Leegstand

Status

🌟

A

Energielabel

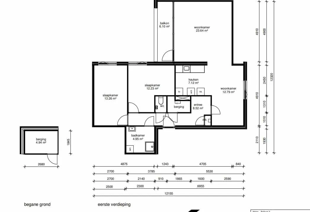
Leuk appartement op de 1e verdieping met 2 slaapkamers, een woonkamer met aangrenzend balkon en een woonkeuken. Er vindt een keukenrenovatie plaats. Het betreft een gehorige woning vlakbij het centrum. U woont dichtbij winkels, openbaar vervoer en uitvalswegen.

De nieuwe huuringangsdatum is per 21 november 2025.

Voordat wij u de woning definitief toewijzen, plannen wij een intakegesprek. Tijdens dat gesprek vertellen wij u meer over de woning en over de (nabije) woonomgeving en bespreken we met u of die bij u als huurder passen. Op basis van de intake kan de voorlopige aanbieding worden ingetrokken. Uw inschrijfdatum bij  Groningen huurt is dus niet bepalend voor definitieve toewijzing van deze woning.

Minimaal inkomen voor deze woning:
• Voor 1 persoon: € 28.375,-
• Voor 1 persoon met AOW: € 27.775,-
• Voor 2 personen (inclusief inwonende kinderen): € 38.500,-
• Voor 2 personen met AOW: € 37.350,-
• Voor 3 of meer personen (inclusief inwonende kinderen): geen eisen
Maximaal inkomen voor deze woning (dit geldt niet voor wijkvernieuwingsurgenties en rolstoelindicaties):
• Voor 1 persoon € 49.669,-
• Voor 2 of meer personen € 54.847,-

📋 Specificaties

Type

Woonruimte

Soort woning

Portiekflat

Verdieping

1

Lift

❌ Nee

🏠 Vertrekken

Berging 1x (4.94m²)
Badkamer 1x (4.95m²)
Keuken 1x (7.12m²)
Slaapkamer 2x (25.49m²)
Woonkamer/keuken 1x (12.79m²)
Woonkamer 1x (23.64m²)

💰 Prijsopbouw

Niet subsidiabele servicekosten €19,19

📍 Locatie

Kaart laden...

🚉

OV

5 min lopen naar station

🏬

Winkels

2 min lopen

🏫

Scholen

Meerdere binnen 1km

🌳

Park

10 min lopen

✅ Selectiecriteria

Uw inkomen is passend
Uw inkomen is niet hoger dan € 49669
Uw inkomen is niet hoger dan € 54847
18 jaar
Woningzoekenden met een Proefwonenurgentie of Woonkansurgentie kunnen geen reactie plaatsen
Meld je aan