Bataviastraat 19 A 9715KJ Groningen

Bataviastraat 19 A
9715KJ Groningen, Indische buurt

€694,95

Per maand

Interesse in dit type woning?

Ontvang direct bericht als er nieuwe woningen beschikbaar komen die bij uw woonwensen passen.

Meld je aan voor woningalerts

Gratis en vrijblijvend

Historische informatie

Deze huurwoning was beschikbaar voor reacties van 22-09-2025 tot 30-09-2025. Deze woning is niet meer beschikbaar voor nieuwe reacties.

🏠

53.59m²

Woonoppervlakte

🛏️

4

Kamers

Leegstand

Status

🌟

C

Energielabel

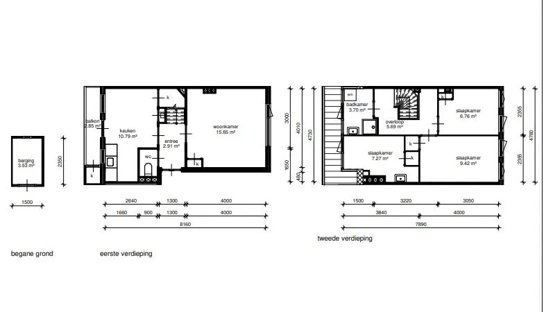
Mooie bovenwoning met 3 slaapkamers en een balkon in de Indische Buurt. In de omgeving zijn diverse voorzieningen te vinden, waaronder winkels en openbaar vervoer. U woont dicht bij het centrum van de stad. Let op: het betreft gehorige woningen.

Let op: er zullen in de nabije toekomst renovatiewerkzaamheden gaan plaatsvinden aan de buitenzijde van de woningen. Dit kan overlast met zich meebrengen. Zie foto voor eventuele werkzaamheden.

De wanden in de woning zijn voorzien van sierpleister. Dit blijft zo.

De nieuwe huuringangsdatum is per 8 oktober 2025. 

Minimaal inkomen voor deze woning:
• geen eisen
Maximaal inkomen voor deze woning (dit geldt niet voor wijkvernieuwingsurgenties en rolstoelindicaties):
• Voor 1 persoon € 49.669,-
• Voor 2 of meer personen € 54.847,-

📋 Specificaties

Type

Woonruimte

Soort woning

Bovenwoning

Verdieping

1

Lift

❌ Nee

🏠 Vertrekken

Berging 1x (3.52m²)
Badkamer 1x (3.7m²)
Slaapkamer 3x (23.45m²)
Keuken 1x (10.79m²)
Woonkamer 1x (15.65m²)

💰 Prijsopbouw

Subsidiabele servicekosten €2,50
Niet subsidiabele servicekosten €9,49

📍 Locatie

Kaart laden...

🚉

OV

5 min lopen naar station

🏬

Winkels

2 min lopen

🏫

Scholen

Meerdere binnen 1km

🌳

Park

10 min lopen

✅ Selectiecriteria

Uw inkomen is niet hoger dan € 49669
Uw inkomen is niet hoger dan € 54847
Woningzoekenden met een Proefwonenurgentie of Woonkansurgentie kunnen geen reactie plaatsen
Meld je aan