Bataviastraat 20 A 9715KN Groningen

Bataviastraat 20 A
9715KN Groningen, Indische buurt

€694,95

Per maand

Interesse in dit type woning?

Ontvang direct bericht als er nieuwe woningen beschikbaar komen die bij uw woonwensen passen.

Meld je aan voor woningalerts

Gratis en vrijblijvend

Historische informatie

Deze huurwoning was beschikbaar voor reacties van 10-09-2025 tot 18-09-2025. Deze woning is niet meer beschikbaar voor nieuwe reacties.

🏠

53.59m²

Woonoppervlakte

🛏️

3

Kamers

Leegstand

Status

🌟

C

Energielabel

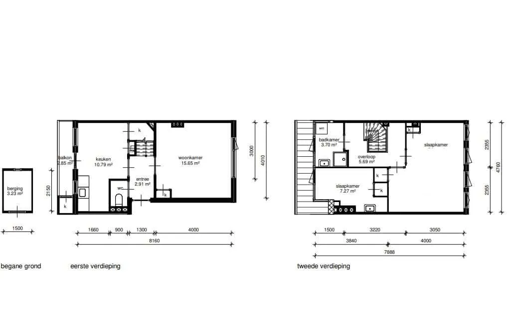
Leuke bovenwoning met een ruime woonkamer en 1 grote en 1 kleine slaapkamer in de Indische Buurt. De woning heeft een balkon. In de omgeving zijn diverse voorzieningen te vinden, waaronder winkels en openbaar vervoer. U woont dicht bij het centrum van de stad. Let op: het betreft een gehorige woning. 

 

Let op: In 2026 starten wij met een onderhoudsproject gericht op verduurzaming. Door ondertekening van het huurcontract gaat u akkoord met deze werkzaamheden.

De nieuwe huuringangsdatum is per 15 oktober 2025.

Minimaal inkomen voor deze woning:
• geen eisen
Maximaal inkomen voor deze woning (dit geldt niet voor wijkvernieuwingsurgenties en rolstoelindicaties):
• Voor 1 persoon € 49.669,-
• Voor 2 of meer personen € 54.847,-
De advertentie is gewijzigd op 11-09-2025 15:26:11.

📋 Specificaties

Type

Woonruimte

Soort woning

Bovenwoning

Verdieping

1

Lift

❌ Nee

🏠 Vertrekken

Berging 1x (3.23m²)
Badkamer 1x (3.7m²)
Slaapkamer 2x (23.45m²)
Keuken 1x (10.79m²)
Woonkamer 1x (15.65m²)

💰 Prijsopbouw

Subsidiabele servicekosten €2,50
Niet subsidiabele servicekosten €9,49

📍 Locatie

Kaart laden...

🚉

OV

5 min lopen naar station

🏬

Winkels

2 min lopen

🏫

Scholen

Meerdere binnen 1km

🌳

Park

10 min lopen

✅ Selectiecriteria

Uw inkomen is niet hoger dan € 49669
Uw inkomen is niet hoger dan € 54847
Woningzoekenden met een Proefwonenurgentie of Woonkansurgentie kunnen geen reactie plaatsen
Meld je aan