Vestdijklaan 204 9721VV Groningen

Vestdijklaan 204
9721VV Groningen, De Wijert-Zuid

€938,25

Per maand

Interesse in dit type woning?

Ontvang direct bericht als er nieuwe woningen beschikbaar komen die bij uw woonwensen passen.

Meld je aan voor woningalerts

Gratis en vrijblijvend

Historische informatie

Deze huurwoning was beschikbaar voor reacties van 15-02-2026 tot 20-02-2026. Deze woning is niet meer beschikbaar voor nieuwe reacties.

🏠

44.45m²

Woonoppervlakte

🛏️

3

Kamers

Leegstand

Status

In de groene wijk De Wijert-Zuid in Groningen staat de Zuiderflat: een onlangs verbouwd, duurzaam en eigentijds seniorencomplex met 130 comfortabele huurappartementen. De Zuiderflat is de eerste locatie waar het concept van Meer dan Wonen tot leven komt. Een deel van de appartementen is zorggeschikt, zodat u hier lang zelfstandig kunt blijven wonen. Met hulp als dat nodig is, en zonder als het niet hoeft.

Op dit moment is er een seniorenappartement vrijgekomen. De woning is per direct beschikbaar. In dit comfortable seniorenappartement geniet u van rust en een fijne woonomgeving. De woning beschikt over één slaapkamer en een royaal balkon op het oosten. - ideaal om van de ochtend zon te genieten.

In de woning ligt een vloer ter overname. 

Om in aanmerking te komen, is het belangrijk dat u bekend bent met het woonconcept: "Meer dan wonen" Hiervoor vult u een motivatieformulier in. meer informatie meerdanwonengroningen.nl

Comfortabel huren, nu en later

De Zuiderflat is onlangs volledig vernieuwd en klaar voor de toekomst. De begane grond is uitgebreid en het gebouw heeft een frisse, moderne uitstraling gekregen. Hier vindt u verschillende voorzieningen, zoals een fysiotherapeut, pedicure, en een sfeervol wijkrestaurant. Ook het Odensehuis en de Buurthuiskamer van ZINN zijn op de begane grond gevestigd.

Alle appartementen zijn goed geïsoleerd, energiezuinig en volledig gasvrij. Ze beschikken over ruime balkons die zorgen voor extra wooncomfort. Alle appartementen zijn comfortabel en toegankelijk ingericht voor iedereen met of zonder zorgvraag. De appartementen zijn rolstoelvriendelijk en praktisch ingericht, met oog voor veiligheid, comfort en zelfstandigheid. Zo kunt u hier prettig blijven wonen, ook als uw situatie verandert.

Een plek vol leven en verbinding

In de Zuiderflat draait het om meer dan alleen prettig wonen. Hier staat ontmoeten en omzien naar elkaar centraal. U woont er zelfstandig, maar nooit alleen. Samen vormt u een fijne, betrokken gemeenschap. Er is altijd ruimte voor gezelligheid en activiteiten met medebewoners en buurtgenoten. Misschien organiseert uw buurman een gezellige koffieochtend of bedenkt u samen met uw buurvrouw een creatieve activiteit. Maar Meer dan Wonen gaat verder dan samen leuke activiteiten organiseren. Het betekent ook naar elkaar omkijken. Even een boodschapje doen voor iemand die slecht ter been is, een extra pannetje soep maken voor een zieke buur of afspreken dat u een krantje voor de deur legt en een seintje geeft als de krant niet wordt opgepakt. Zo zorgen we samen dat iedereen zich gezien en gesteund voelt – nu én in de toekomst.

Zorg dichtbij, als u dat wilt

Zorgorganisatie ZINN is actief in de Zuiderflat met een vast en betrokken zorgteam. Zij kennen de bewoners en de wijk goed, en bieden zorg die past bij uw persoonlijke situatie. Of u nu nog zelfstandig bent of wat extra hulp kunt gebruiken, de zorg is er wanneer u die nodig heeft.

Zo groeit de Zuiderflat uit tot een vertrouwde plek waar wonen, welzijn en zorg op een natuurlijke manier samenkomen.

📋 Specificaties

Type

Woonruimte

Soort woning

Corridorflat

Verdieping

7

Lift

✅ Ja

🏠 Vertrekken

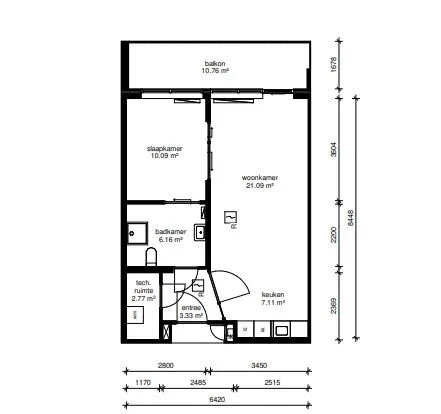
Berging 1x (2.77m²)
Keuken 1x (7.11m²)
Slaapkamer 1x (10.09m²)
Woonkamer 1x (21.09m²)

💰 Prijsopbouw

Niet subsidiabele servicekosten €65,23
Warmte €160,00

📍 Locatie

Kaart laden...

🚉

OV

5 min lopen naar station

🏬

Winkels

2 min lopen

🏫

Scholen

Meerdere binnen 1km

🌳

Park

10 min lopen

✅ Selectiecriteria

Uitsluitend voor huishoudens zonder inwonende kinderen
Uw inkomen is niet hoger dan € 51537
Uw inkomen is niet hoger dan € 56910
vanaf 75 jaar
Woningzoekenden met een Proefwonenurgentie of Woonkansurgentie kunnen geen reactie plaatsen
Meld je aan