Terug Helper Kerkstraat 11 6
Helper Kerkstraat 11 6 9722ES Groningen

Helper Kerkstraat 11 6
9722ES Groningen, Helpman

€517,17

Per maand

Interesse in dit type woning?

Ontvang direct bericht als er nieuwe woningen beschikbaar komen die bij uw woonwensen passen.

Meld je aan voor woningalerts

Gratis en vrijblijvend

Historische informatie

Deze huurwoning was beschikbaar voor reacties van 16-04-2026 tot 21-04-2026. Deze woning is niet meer beschikbaar voor nieuwe reacties.

🏠

36.34m²

Woonoppervlakte

🛏️

2

Kamers

Leegstand

Status

🌟

A

Energielabel

“Voordat wij u de woning definitief toewijzen, plannen wij een intakegesprek. Tijdens dat gesprek vertellen wij u meer over de woning en over de (nabije) woonomgeving en bespreken we met u of die bij u als huurder passen. Op basis van de intake kan de voorlopige aanbieding worden ingetrokken. Uw inschrijfdatum bij WoningNet is dus niet bepalend voor definitieve toewijzing van deze woning.” 

Algemeen 
Voor woningen in portieken dient u rekening te houden met leefgeluiden van medebewoners. 

De te huur per datum is onder voorbehoud. 

Indien deze woning meer dan 10 keer wordt geweigerd op basis van de toewijzingsprocedure inschrijfduur, zal de woning opnieuw gepubliceerd worden met toewijzingsprocedure loting.  

Overname  
De vertrekkende huurder biedt spullen aan ter overname. 

Huishoudsamenstelling 
Geschikt voor max. 2 personen. 

Parkeren 
Voor informatie over parkeren kunt u kijken op de website van de Gemeente Groningen. 

 

📋 Specificaties

Type

Woonruimte

Soort woning

Portiekflat

Verdieping

3

Lift

❌ Nee

🏠 Vertrekken

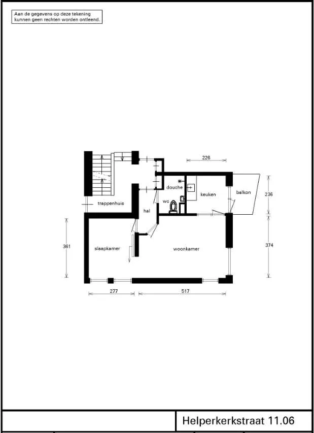
Badkamer 1x (2.7m²)
Berging 1x (4m²)
Keuken 1x (5.33m²)
Slaapkamer 1x (10m²)
Woonkamer 1x (18.31m²)

💰 Prijsopbouw

Niet subsidiabele servicekosten €18,97

📍 Locatie

Kaart laden...

🚉

OV

5 min lopen naar station

🏬

Winkels

2 min lopen

🏫

Scholen

Meerdere binnen 1km

🌳

Park

10 min lopen

✅ Selectiecriteria

Uw inkomen is niet hoger dan € 51537
Uw inkomen is niet hoger dan € 56910
18 jaar
Woningzoekenden met een Proefwonenurgentie of Woonkansurgentie kunnen geen reactie plaatsen
Meld je aan