Mauritsstraat 5 A 9724BH Groningen

Mauritsstraat 5 A
9724BH Groningen, Oosterpoort

€1.338,86

Per maand

Interesse in dit type woning?

Ontvang direct bericht als er nieuwe woningen beschikbaar komen die bij uw woonwensen passen.

Meld je aan voor woningalerts

Gratis en vrijblijvend

Historische informatie

Deze huurwoning was beschikbaar voor reacties van 31-03-2026 tot 08-04-2026. Deze woning is niet meer beschikbaar voor nieuwe reacties.

🏠

107.78m²

Woonoppervlakte

🛏️

4

Kamers

Leegstand

Status

Het betreft hier verhuur krachtens de leegstandswet. Uw inschrijving bij Woningnet (inschrijfduur) komt niet te vervallen bij acceptatie van deze woning. Let op: de woning is van  23-03-2026 t/m 30-09-2026 te huur. Daarna bent u zelf verantwoordelijk voor het vinden van andere woonruimte. Omdat dit een tijdelijke woning betreft, zullen wij geen huishoudens met kinderen huisvesten. Deze huishoudens zullen wij ook meteen uit de reacties halen. 

Grote woning met 3 slaapkamers in de wijk Oosterpoort. U woont dichtbij het station en het centrum.

Inkomenseis:

  • Eenpersoonshuishoudens: minimaal € 51.537,00
  • Meerpersoonshuishoudens: minimaal € 56.910,00
  • <

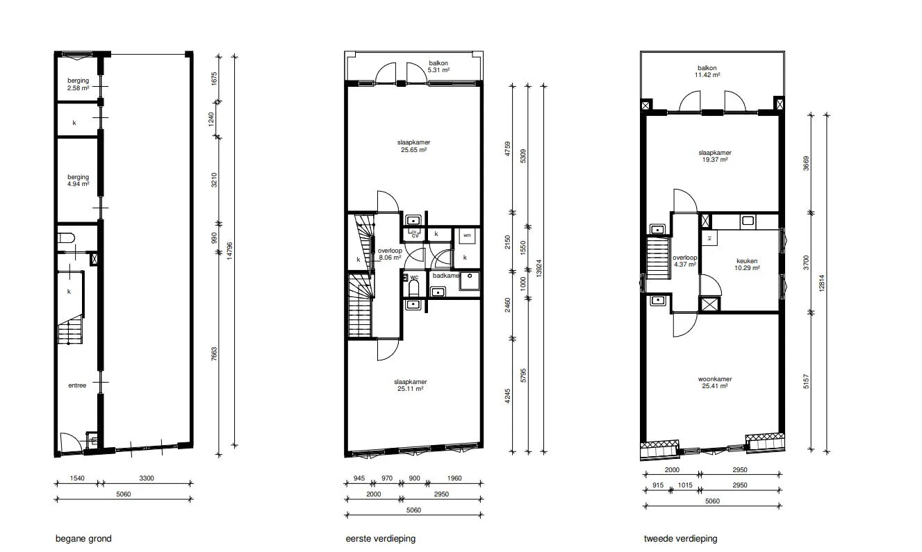
📋 Specificaties

Type

Woonruimte

Soort woning

Bovenwoning

Verdieping

1

Lift

❌ Nee

🏠 Vertrekken

Badkamer 1x (1.96m²)
Berging 1x (4.94m²)
Keuken 1x (10.28m²)
Slaapkamer 3x (70.13m²)
Woonkamer 1x (25.41m²)

💰 Prijsopbouw

Niet subsidiabele servicekosten €9,15

📍 Locatie

Kaart laden...

🚉

OV

5 min lopen naar station

🏬

Winkels

2 min lopen

🏫

Scholen

Meerdere binnen 1km

🌳

Park

10 min lopen

✅ Selectiecriteria

maximaal € 99000
maximaal € 99000
18 jaar
Je inkomen is hoger dan € 51537
Je inkomen is hoger dan € 56910
Woningzoekenden met een Proefwonenurgentie of Woonkansurgentie kunnen geen reactie plaatsen
Meld je aan