Lauwersstraat 58 9725HH Groningen

Lauwersstraat 58
9725HH Groningen, Rivierenbuurt

€733,82

Per maand

Interesse in dit type woning?

Ontvang direct bericht als er nieuwe woningen beschikbaar komen die bij uw woonwensen passen.

Meld je aan voor woningalerts

Gratis en vrijblijvend

Historische informatie

Deze huurwoning was beschikbaar voor reacties van 22-01-2026 tot 27-01-2026. Deze woning is niet meer beschikbaar voor nieuwe reacties.

🏠

42.82m²

Woonoppervlakte

🛏️

3

Kamers

Leegstand

Status

🌟

A

Energielabel

Leuke portiekwoning met 2 slaapkamers en een balkon op de bovenste verdieping van het complex. Het betreft een gehorige woning. U woont op 10 minuten fietsen van het station en centrum. In dit complex zijn onlangs renovatiewerkzaamheden afgerond. 

De nieuwe huuringangsdatum is 25 februari 2026.

Minimaal inkomen voor deze woning:
• geen eisen
Maximaal inkomen voor deze woning (dit geldt niet voor wijkvernieuwingsurgenties en rolstoelindicaties):
• Voor 1 persoon € 51.537,-
• Voor 2 of meer personen € 56.910,-

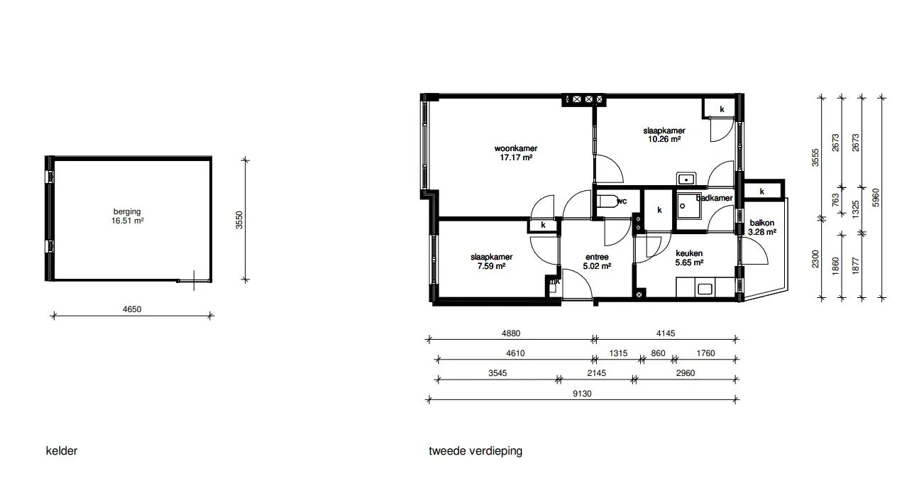
📋 Specificaties

Type

Woonruimte

Soort woning

Portiekflat

Verdieping

3

Lift

❌ Nee

🏠 Vertrekken

Toilet 1x (1.07m²)
Badkamer 1x (2.15m²)
Keuken 1x (5.65m²)
Slaapkamer 2x (17.85m²)
Berging 1x (16.51m²)
Woonkamer 1x (17.17m²)

💰 Prijsopbouw

Niet subsidiabele servicekosten €20,80

📍 Locatie

Kaart laden...

🚉

OV

5 min lopen naar station

🏬

Winkels

2 min lopen

🏫

Scholen

Meerdere binnen 1km

🌳

Park

10 min lopen

✅ Selectiecriteria

Uw inkomen is niet hoger dan € 51537
Uw inkomen is niet hoger dan € 56910
18 jaar
Woningzoekenden met een Proefwonenurgentie of Woonkansurgentie kunnen geen reactie plaatsen
Meld je aan