Hoornsediep 136 9725HN Groningen

Hoornsediep 136
9725HN Groningen, Rivierenbuurt

€788,85

Per maand

Interesse in dit type woning?

Ontvang direct bericht als er nieuwe woningen beschikbaar komen die bij uw woonwensen passen.

Meld je aan voor woningalerts

Gratis en vrijblijvend

Historische informatie

Deze huurwoning was beschikbaar voor reacties van 05-01-2026 tot 12-01-2026. Deze woning is niet meer beschikbaar voor nieuwe reacties.

🏠

63.9m²

Woonoppervlakte

🛏️

4

Kamers

Leegstand

Status

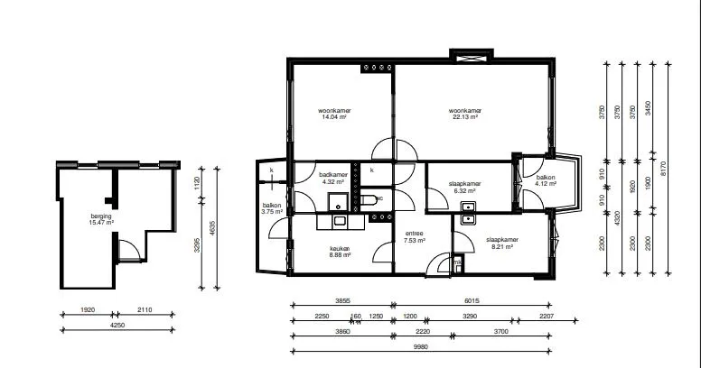
Leuke ruime woning met drie slaapkamers op de eerste verdieping in de Rivierenbuurt. De woning heeft een balkon aan de voor-en achterkant. 

In de directe omgeving bevinden zich diverse voorzieningen, waaronder scholen, het stadspark en het bus- en treinstation. U fietst in een paar minuten naar het station en in tien minuten naar de Grote Markt. Van hieruit zijn de uitvalswegen goed bereikbaar.

De nieuwe huuringangsdatum is: 25 februari 2026.

Minimaal inkomen voor deze woning:
• Voor 1 persoon: € 29.400,- 
• Voor 2 of meer personen (inclusief inwonende kinderen): € 39.925,-
Maximaal inkomen voor deze woning (dit geldt niet voor wijkvernieuwingsurgenties en rolstoelindicaties):
• Voor 1 persoon € 51.537
• Voor 2 of meer personen € 56.910

📋 Specificaties

Type

Woonruimte

Soort woning

Portiekflat

Verdieping

4

Lift

❌ Nee

🏠 Vertrekken

Toilet 1x (1.37m²)
Badkamer 1x (4.32m²)
Slaapkamer 2x (14.53m²)
Keuken 1x (8.88m²)
Berging 1x (15.47m²)
Woonkamer 1x (22.13m²)

💰 Prijsopbouw

Niet subsidiabele servicekosten €24,71

📍 Locatie

Kaart laden...

🚉

OV

5 min lopen naar station

🏬

Winkels

2 min lopen

🏫

Scholen

Meerdere binnen 1km

🌳

Park

10 min lopen

✅ Selectiecriteria

Uw inkomen is passend
Uw inkomen is niet hoger dan € 51537
Uw inkomen is niet hoger dan € 56910
18 jaar
Meld je aan