Maaslaan 39 9725HV Groningen

Maaslaan 39
9725HV Groningen, Rivierenbuurt

€1.004,79

Per maand

Interesse in dit type woning?

Ontvang direct bericht als er nieuwe woningen beschikbaar komen die bij uw woonwensen passen.

Meld je aan voor woningalerts

Gratis en vrijblijvend

Historische informatie

Deze huurwoning was beschikbaar voor reacties van 04-02-2026 tot 09-02-2026. Deze woning is niet meer beschikbaar voor nieuwe reacties.

🏠

76.55m²

Woonoppervlakte

🛏️

3

Kamers

Leegstand

Status

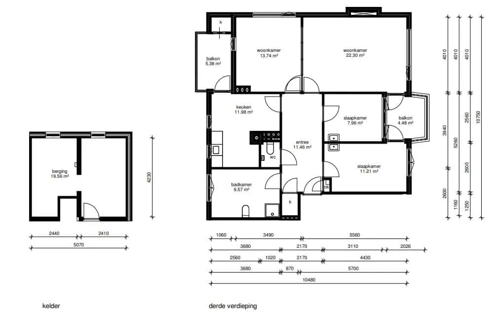
Mooie aangepaste rolstoelvriendelijke ruime gezinswoning met een grote woonkamer, twee slaapkamers en twee balkons op de bovenste woonlaag in de Rivierenbuurt. Een gedeelte van de woonkamer is te gebruiken als slaapkamer, dus de woning is ook geschikt als drieslaapkamer woning. Bekijk het plattegrond goed. Ook is er een zeer ruime berging. Let op: de badkamer blijft zoals deze is. 

De woning is bereikbaar middels een lift of trappen en ligt naast de zuidelijke ringweg. In de omgeving zijn diverse voorzieningen te vinden, waaronder het station, een zwembad, een supermarkt en horeca. In amper tien minuten fietst u naar het centrum van de stad. De uitvalswegen A7 en A28 zijn snel bereikbaar. 

De nieuwe huuringangsdatum is per 5 februari 2026.

Minimaal inkomen voor deze woning:
• Voor 1 persoon: € 29.400,- 
• Voor 2 of meer personen (inclusief inwonende kinderen): € 39.925,-
Maximaal inkomen voor deze woning (dit geldt niet voor wijkvernieuwingsurgenties en rolstoelindicaties):
• Voor 1 persoon € 51.537
• Voor 2 of meer personen € 56.910

📋 Specificaties

Type

Woonruimte

Soort woning

Portiekwoning

Verdieping

4

Lift

✅ Ja

🏠 Vertrekken

Toilet 1x (1.39m²)
Slaapkamer 2x (19.17m²)
Badkamer 1x (9.57m²)
Keuken 1x (11.98m²)
Berging 1x (19.56m²)
Woonkamer 1x (36.04m²)

💰 Prijsopbouw

Niet subsidiabele servicekosten €71,86

📍 Locatie

Kaart laden...

🚉

OV

5 min lopen naar station

🏬

Winkels

2 min lopen

🏫

Scholen

Meerdere binnen 1km

🌳

Park

10 min lopen

✅ Selectiecriteria

Uw inkomen is passend
Uw inkomen is niet hoger dan € 51537
Uw inkomen is niet hoger dan € 56910
18 jaar
Woningzoekenden met een Proefwonenurgentie of Woonkansurgentie kunnen geen reactie plaatsen
Meld je aan