Terug Westinghousestraat 25 -40
Westinghousestraat 25 -40 9727GR Groningen

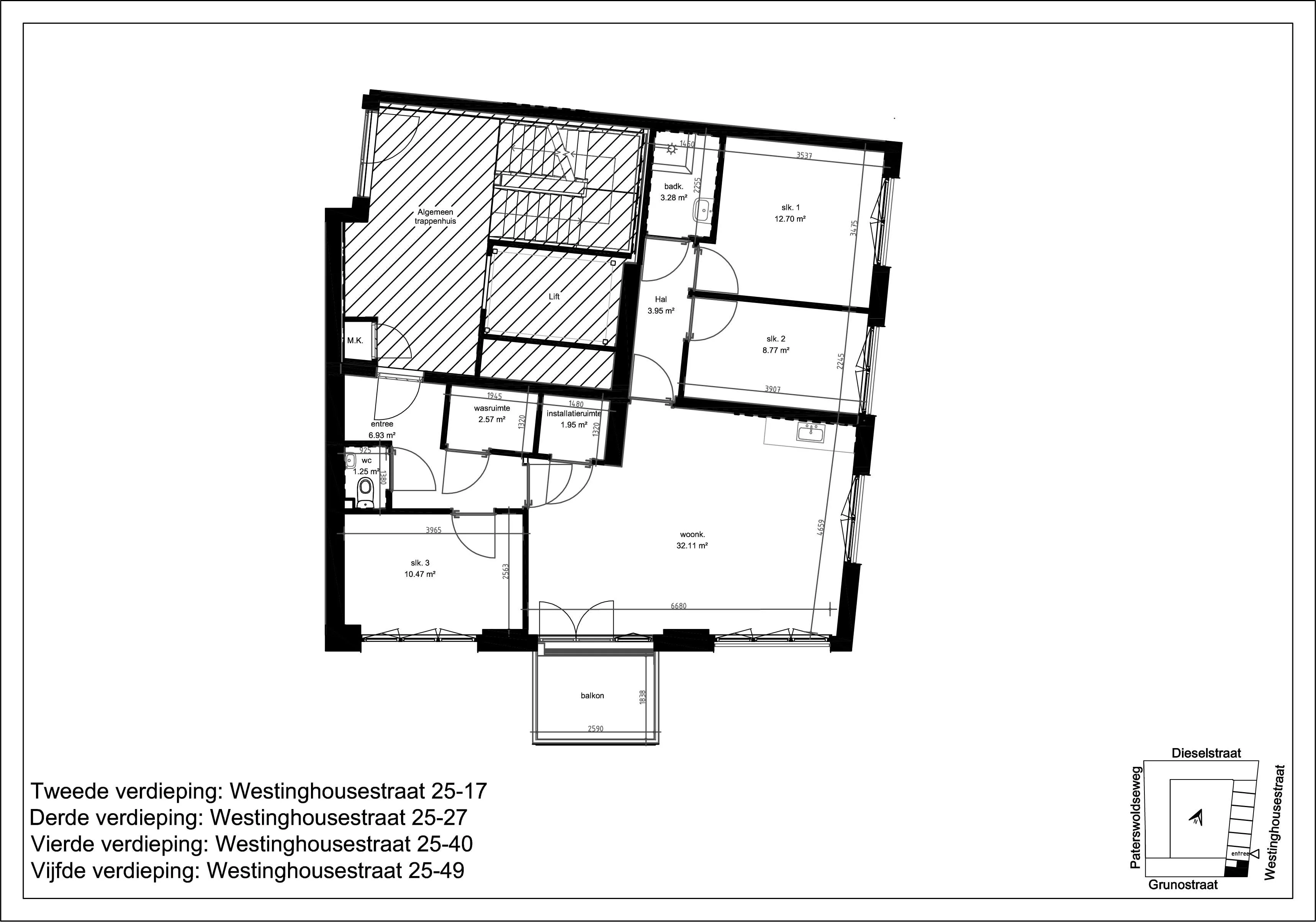
Westinghousestraat 25 -40
9727GR Groningen, Grunobuurt

€914,24

Per maand

Interesse in dit type woning?

Ontvang direct bericht als er nieuwe woningen beschikbaar komen die bij uw woonwensen passen.

Meld je aan voor woningalerts

Gratis en vrijblijvend

Historische informatie

Deze huurwoning was beschikbaar voor reacties van 02-11-2025 tot 07-11-2025. Deze woning is niet meer beschikbaar voor nieuwe reacties.

🏠

79.86m²

Woonoppervlakte

🛏️

4

Kamers

Leegstand

Status

🌟

A

Energielabel

LET OP: Voordat je een woning gaat huren, adviseren we je om een offerte op te vragen voor de energiekosten bij een energieleverancier. Houd hierbij rekening met het energielabel van de woning, dit kan invloed hebben op je verbruik. Met deze informatie kun je beter inschatten wat je totale vaste lasten worden voor de aangeboden woning.

Nijestee is al langere tijd bezig met wijkvernieuwing in de Grunobuurt. De oude woningen zijn gesloopt en nieuwe woningen worden bloksgewijs teruggebouwd. Uiteindelijk zal de Grunobuurt uit ongeveer 650 woningen bestaan, verdeeld over acht blokken. De Grunobuurt ligt op een unieke locatie, op loopafstand van het centrum en het station en ook dichtbij het Stadspark. 

Het woongebouw Lampisterie is aardbevingsbestendig gebouwd. In het gebouw zitten 15 appartementen voor jongeren met een beperking. Deze woningen liggen bij elkaar op de 2e en 3e verdieping aan de kant van de Paterswoldseweg. De woning wordt verwarmd door vloerverwarming. Er is geen gasaansluiting in de woning, je kookt elektrisch. Een elektrische kookplaat met perilex aansluiting schaf je zelf aan.

Je komt de woning binnen via het trappenhuis bij de hoofdentree aan de Westinghousestraat. Dit appartement bevindt zich op de hoek Grunostraat/Westinghousestraat en heeft een woonkamer met open keuken, badkamer, apart toilet en een balkon op het zuiden. De berging bevindt zich in het bergingenblok op de begane grond. 

Inkomenseis
Minimaal inkomen voor deze woning:
• Voor 1 persoon: € 28.376,-
• Voor 1 persoon met AOW: € 27.775,-
• Voor 2 of meer personen (inclusief inwonende kinderen): € 38.501,-
• Voor 2 of meer personen met AOW: € 37.350,-
Maximaal inkomen voor deze woning (dit geldt niet voor wijkvernieuwingsurgenties en rolstoelindicaties):
• Voor 1 persoon € 49.669,-
• Voor 2 of meer personen € 54.847,-
Meer algemene informatie over inkomensregels vind je hier.

Verwarming, elektra en water
De woning wordt verwarmd met behulp van aardwarmte, via een duurzaam WKO-systeem (Warmte Koude Opslag). Je kunt daardoor in de zomer je woning ook koelen. Warmtestad is hiervoor de leverancier, waarmee de huurder verplicht een contract afsluit. Een zeer groot deel van het voorschot bestaat uit vastrechtkosten. Dit betekent dat de huurder weinig invloed heeft op de rekening. Het actuele voorschotbedrag is de vinden op de website van WarmteStad. Dit is exclusief elektriciteit en water. Elektriciteit en water vraag je zelf aan.

Zonnepanelen
Op het hele dak zijn zonnepanelen geplaatst. Drie daarvan zijn aan de eigen meter gekoppeld, de opbrengst van de resterende panelen wordt gebruikt voor het elektra in de algemene ruimtes, zoals lift en de verlichting in de entrees. De zonnepanelen zijn via een omvormer aangesloten op de meterkast in de woning. Deze zonnepanelen wekken elektriciteit op en deze wordt aan de woning geleverd. De zonnepanelen zorgen dus voor een besparing op je energierekening. Geef aan je energieleverancier door dat de woning zonnepanelen heeft. Je energieleverancier kan het voorschotbedrag eventueel aanpassen.

Overname
Eventuele overname van diverse spullen kun je overleggen met de bewoner.

Parkeren
Op het binnenterrein is parkeerruimte voor 46 auto’s. Deze plaatsen worden los verhuurd. De toegang is via de Grunostraat, met een doorrijhoogte van 2.30 meter. Ook kun je een parkeerplaats huren/kopen in de ondergrondse parkeerkelder in het woongebouw Typhoon via Nijestee. Kijk op www.nijestee.nl of er een parkeerplaats beschikbaar is. Informatie over parkeren in de wijk is hier te vinden. De gemeenschappelijke fietsenbergingen op de begane grond zijn alleen bestemd voor bewoners die geen berging op de begane grond hebben. 

Loting
Als een woning 10 keer wordt geweigerd bieden we de woning mogelijk via loting aan. Deze optie vind je in WoningNet. Bij loting is de opgebouwde wachttijd niet van belang. 

📋 Specificaties

Type

Woonruimte

Soort woning

Portiekflat

Verdieping

4

Lift

✅ Ja

🏠 Vertrekken

Berging 1x (7m²)
Slaapkamer 3x (33m²)
Woonkamer 1x (35m²)

💰 Prijsopbouw

Subsidiabele servicekosten €25,89
Niet subsidiabele servicekosten €14,17

📍 Locatie

Kaart laden...

🚉

OV

5 min lopen naar station

🏬

Winkels

2 min lopen

🏫

Scholen

Meerdere binnen 1km

🌳

Park

10 min lopen

✅ Selectiecriteria

Uw inkomen is passend
Uw inkomen is niet hoger dan € 49669
Uw inkomen is niet hoger dan € 54847
18 jaar
Meld je aan