
Huygensstraat 77
9727JB Groningen, Grunobuurt
€703,69
Per maand
Interesse in dit type woning?
Ontvang direct bericht als er nieuwe woningen beschikbaar komen die bij uw woonwensen passen.
Meld je aan voor woningalertsGratis en vrijblijvend
Historische informatie
Deze huurwoning was beschikbaar voor reacties van 16-10-2025 tot 24-10-2025. Deze woning is niet meer beschikbaar voor nieuwe reacties.
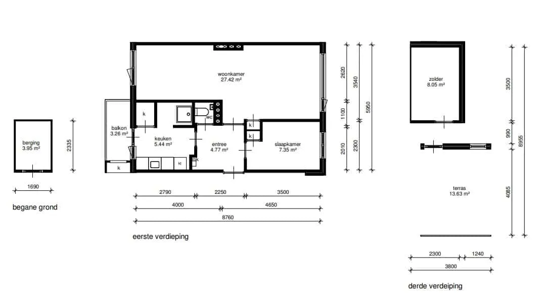
50.21m²
Woonoppervlakte
2
Kamers
Leegstand
Status
A
Energielabel
Omschrijving
Aangeboden door Patrimonium GroningenFlatwoning met 1 slaapkamer op de 2e woonlaag in de Stadsparkwijk. In deze woning heeft een toiletrenovatie plaats gevonden. Ook zit er een nieuw keukenblok in. U woont in de Stadsparkwijk dichtbij winkels, openbaar vervoer en u fietst binnen 10 minuten naar het centrum.
Voordat wij u de woning definitief toewijzen, plannen wij een intakegesprek. Tijdens dat gesprek vertellen wij u meer over de woning en over de (nabije) woonomgeving en bespreken we met u of die bij u als huurder passen. Op basis van de intake kan de voorlopige aanbieding worden ingetrokken. Uw inschrijfdatum bij WoningNet is dus niet bepalend voor definitieve toewijzing van deze woning.
De huuringangsdatum is per direct.
Minimaal inkomen voor deze woning: • geen eisen Maximaal inkomen voor deze woning (dit geldt niet voor wijkvernieuwingsurgenties en rolstoelindicaties): • Voor 1 persoon € 49.669,- • Voor 2 of meer personen € 54.847,- Meer algemene informatie over inkomensregels vind je hier. |
📋 Specificaties
Type
Woonruimte
Soort woning
Portiekwoning
Verdieping
2
Lift
❌ Nee
🏠 Vertrekken
💰 Prijsopbouw
📍 Locatie
OV
5 min lopen naar station
Winkels
2 min lopen
Scholen
Meerdere binnen 1km
Park
10 min lopen