Huygensstraat 97 9727JB Groningen

Huygensstraat 97
9727JB Groningen, Grunobuurt

€786,97

Per maand

Interesse in dit type woning?

Ontvang direct bericht als er nieuwe woningen beschikbaar komen die bij uw woonwensen passen.

Meld je aan voor woningalerts

Gratis en vrijblijvend

Historische informatie

Deze huurwoning was beschikbaar voor reacties van 23-12-2025 tot 29-12-2025. Deze woning is niet meer beschikbaar voor nieuwe reacties.

🏠

51.86m²

Woonoppervlakte

🛏️

4

Kamers

Leegstand

Status

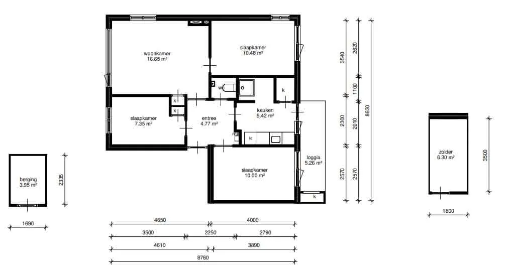
Leuke portiekwoning met 3 slaapkamers (waarvan 1 kleine) in de Rivierenbuurt. Het betreft een gehorige portiek met een afgesloten intercom. De woning heeft een berging op de begane grond en bezit over een kleine zolder. U woont dichtbij winkels en uitvalswegen. De woning beschikt over een balkon en er is een gezamenlijk dakterras op de bovenste verdieping.

De nieuwe huuringangsdatum is per 23 januari 2026.

Minimaal inkomen voor deze woning:
• Voor 1 persoon: € 29.400,-
• Voor 1 persoon met AOW: € 28.775,-
• Voor 2 personen (inclusief inwonende kinderen): € 39.925,-,-
• Voor 2 personen met AOW: € 38.650,-
• Voor 3 of meer personen (inclusief inwonende kinderen): geen eisen
Maximaal inkomen voor deze woning (dit geldt niet voor wijkvernieuwingsurgenties en rolstoelindicaties):
• Voor 1 persoon € 51.537,-
• Voor 2 of meer personen € 56.910,-
Meer algemene informatie over inkomensregels vind je hier.

📋 Specificaties

Type

Woonruimte

Soort woning

Portiekflat

Verdieping

1

Lift

❌ Nee

🏠 Vertrekken

Toilet 1x (1.2m²)
Badkamer 1x (1.96m²)
Berging 1x (3.95m²)
Keuken 1x (5.42m²)
Zolder 1x (6.3m²)
Slaapkamer 3x (27.83m²)
Woonkamer 1x (16.65m²)

💰 Prijsopbouw

Niet subsidiabele servicekosten €22,83

📍 Locatie

Kaart laden...

🚉

OV

5 min lopen naar station

🏬

Winkels

2 min lopen

🏫

Scholen

Meerdere binnen 1km

🌳

Park

10 min lopen

✅ Selectiecriteria

Uw inkomen is passend
Uw inkomen is niet hoger dan € 51537
Uw inkomen is niet hoger dan € 56910
18 jaar
Woningzoekenden met een Proefwonenurgentie of Woonkansurgentie kunnen geen reactie plaatsen
Meld je aan