Huygensstraat 86 9727JG Groningen

Huygensstraat 86
9727JG Groningen, Grunobuurt

€705,79

Per maand

Interesse in dit type woning?

Ontvang direct bericht als er nieuwe woningen beschikbaar komen die bij uw woonwensen passen.

Meld je aan voor woningalerts

Gratis en vrijblijvend

Historische informatie

Deze huurwoning was beschikbaar voor reacties van 08-12-2025 tot 15-12-2025. Deze woning is niet meer beschikbaar voor nieuwe reacties.

🏠

49m²

Woonoppervlakte

🛏️

3

Kamers

Leegstand

Status

🌟

B

Energielabel

Leuke portiekwoning met 2 slaapkamers op de 1e woonlaag in de Stadsparkwijk. Er hoort ook een tuin bij de woning en er zit een bergzolder op de bovenste verdieping. U woont in de Stadsparkwijk dichtbij winkels, openbaar vervoer en u fietst binnen 10 minuten naar het centrum.

De huuringangsdatum is per 19 december 2025.

Minimaal inkomen voor deze woning:
• geen eisen
Maximaal inkomen voor deze woning (dit geldt niet voor wijkvernieuwingsurgenties en rolstoelindicaties):
• Voor 1 persoon € 49.669,-
• Voor 2 of meer personen € 54.847,-

📋 Specificaties

Type

Woonruimte

Soort woning

Portiekflat

Verdieping

1

Lift

❌ Nee

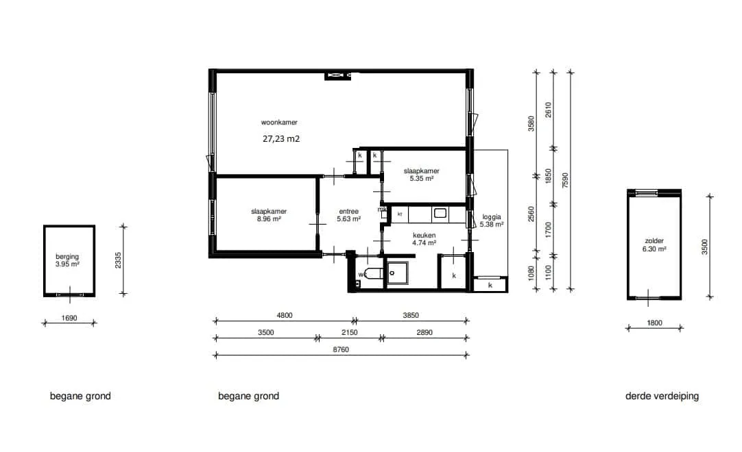
🏠 Vertrekken

Toilet 1x (1.1m²)
Badkamer 1x (2.06m²)
Berging 1x (3.95m²)
Keuken 1x (4.74m²)
Slaapkamer 2x (14.31m²)
Zolder 1x (6.3m²)
Woonkamer 1x (27.5m²)

💰 Prijsopbouw

Niet subsidiabele servicekosten €22,83

📍 Locatie

Kaart laden...

🚉

OV

5 min lopen naar station

🏬

Winkels

2 min lopen

🏫

Scholen

Meerdere binnen 1km

🌳

Park

10 min lopen

✅ Selectiecriteria

Uw inkomen is niet hoger dan € 51537
Uw inkomen is niet hoger dan € 56910
18 jaar
Woningzoekenden met een Proefwonenurgentie of Woonkansurgentie kunnen geen reactie plaatsen
Meld je aan