
Invasiestraat 23
9728CH Groningen, Corpus den Hoorn
€715,35
Per maand
Interesse in dit type woning?
Ontvang direct bericht als er nieuwe woningen beschikbaar komen die bij uw woonwensen passen.
Meld je aan voor woningalertsGratis en vrijblijvend
Historische informatie
Deze huurwoning was beschikbaar voor reacties van 06-10-2025 tot 14-10-2025. Deze woning is niet meer beschikbaar voor nieuwe reacties.
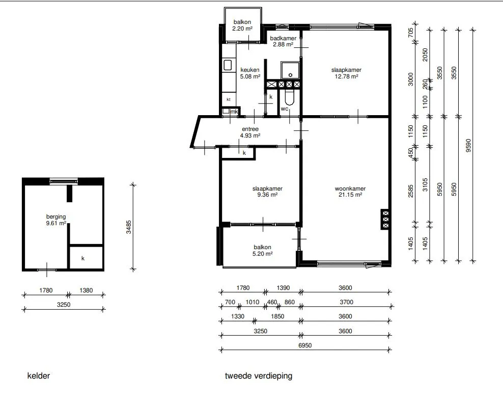
51.25m²
Woonoppervlakte
3
Kamers
Leegstand
Status
Omschrijving
Aangeboden door Patrimonium GroningenDe nieuwe huuringangsdatum is 14 oktober 2025.
Voordat wij jou de woning definitief toewijzen, plannen wij een intakegesprek. Tijdens dat gesprek vertellen wij je meer over de woning en over de (nabije) woonomgeving en bespreken we met jou of die bij jou als huurder passen. Op basis van de intake kan de voorlopige aanbieding worden ingetrokken. Jouw inschrijfdatum bij WoningNet is dus niet bepalend voor definitieve toewijzing van deze woning.
Minimaal inkomen voor deze woning: • geen eisen Maximaal inkomen voor deze woning (dit geldt niet voor wijkvernieuwingsurgenties en rolstoelindicaties): • Voor 1 persoon € 49.699,- • Voor 2 of meer personen € 54.847,- |
📋 Specificaties
Type
Woonruimte
Soort woning
Portiekwoning
Verdieping
3
Lift
❌ Nee
🏠 Vertrekken
💰 Prijsopbouw
📍 Locatie
OV
5 min lopen naar station
Winkels
2 min lopen
Scholen
Meerdere binnen 1km
Park
10 min lopen