Invasiestraat 74 9728CN Groningen

Invasiestraat 74
9728CN Groningen, Corpus den Hoorn

€735,78

Per maand

Interesse in dit type woning?

Ontvang direct bericht als er nieuwe woningen beschikbaar komen die bij uw woonwensen passen.

Meld je aan voor woningalerts

Gratis en vrijblijvend

Historische informatie

Deze huurwoning was beschikbaar voor reacties van 10-12-2025 tot 15-12-2025. Deze woning is niet meer beschikbaar voor nieuwe reacties.

🏠

60m²

Woonoppervlakte

🛏️

3

Kamers

Leegstand

Status

 

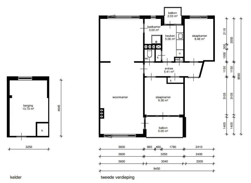
Deze leuke, maar gehorige woning ligt op de derde woonlaag in de wijk Corpus den Hoorn. De woning heeft een ruime woonkamer, bestaande uit een voor en achterkamer. De woning heeft twee slaapkamers en een groot en klein balkon. In de directe omgeving zijn diverse voorzieningen te vinden, waaronder openbaar vervoer en winkelcentrum Overwinningsplein. De uitvalswegen zijn snel bereikbaar en u fietst in tien minuten naar het centrum van de stad. 

Bij de woning horen 2 bergingen.

De nieuwe huuringangsdatum is 16 januari 2026.

Minimaal inkomen voor deze woning:
• geen eisen
Maximaal inkomen voor deze woning (dit geldt niet voor wijkvernieuwingsurgenties en rolstoelindicaties):
• Voor 1 persoon € 51.537,-
• Voor 2 of meer personen € 56.910,-

 

📋 Specificaties

Type

Woonruimte

Soort woning

Portiekflat

Verdieping

3

Lift

❌ Nee

🏠 Vertrekken

Toilet 1x (0.86m²)
Badkamer 1x (3m²)
Keuken 1x (5.06m²)
Slaapkamer 2x (17.84m²)
Berging 2x (27.4m²)
Woonkamer 1x (34.11m²)

💰 Prijsopbouw

Niet subsidiabele servicekosten €22,76

📍 Locatie

Kaart laden...

🚉

OV

5 min lopen naar station

🏬

Winkels

2 min lopen

🏫

Scholen

Meerdere binnen 1km

🌳

Park

10 min lopen

✅ Selectiecriteria

Uw inkomen is passend
Uw inkomen is niet hoger dan € 51537
Uw inkomen is niet hoger dan € 56910
18 jaar
Woningzoekenden met een Proefwonenurgentie of Woonkansurgentie kunnen geen reactie plaatsen
Meld je aan