Bezettingslaan 192 9728EM Groningen

Bezettingslaan 192
9728EM Groningen, Corpus den Hoorn

€752,47

Per maand

Interesse in dit type woning?

Ontvang direct bericht als er nieuwe woningen beschikbaar komen die bij uw woonwensen passen.

Meld je aan voor woningalerts

Gratis en vrijblijvend

Historische informatie

Deze huurwoning was beschikbaar voor reacties van 21-12-2025 tot 29-12-2025. Deze woning is niet meer beschikbaar voor nieuwe reacties.

🏠

50m²

Woonoppervlakte

🛏️

3

Kamers

Leegstand

Status

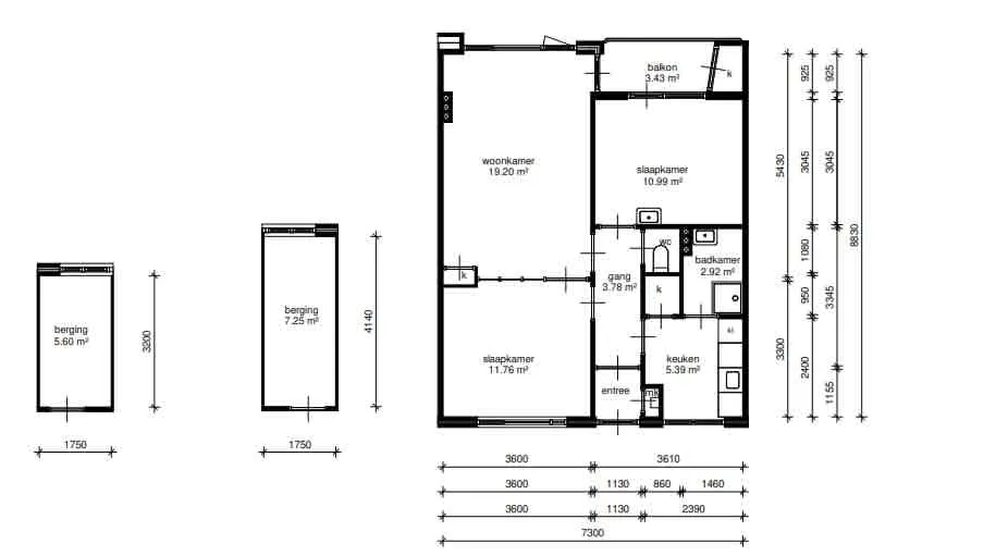
Portiekflat met 2 slaapkamers op de 3e woonlaag in Corpus den Hoorn, in het zuiden van de stad. Deze woning is te bereiken met een lift en via de trap en heeft een balkon. De woning beschikt over 2 bergingen. U woont dichtbij winkels en uitvalswegen. In deze woning vindt een keuken-, badkamer- en w.c. renovatie plaats.

De huuringangsdatum is 26 januari 2026. 

Minimaal inkomen voor deze woning:
• geen eisen
Maximaal inkomen voor deze woning (dit geldt niet voor wijkvernieuwingsurgenties en rolstoelindicaties):
• Voor 1 persoon € 51.537,-
• Voor 2 of meer personen € 56.910,-
Meer algemene informatie over inkomensregels vind je hier.

📋 Specificaties

Type

Woonruimte

Soort woning

Galerijflat

Verdieping

3

Lift

✅ Ja

🏠 Vertrekken

Toilet 1x (0.93m²)
Badkamer 1x (2.92m²)
Keuken 1x (5.39m²)
Berging 2x (12.85m²)
Slaapkamer 2x (22.75m²)
Woonkamer 1x (19.2m²)

💰 Prijsopbouw

Niet subsidiabele servicekosten €39,45

📍 Locatie

Kaart laden...

🚉

OV

5 min lopen naar station

🏬

Winkels

2 min lopen

🏫

Scholen

Meerdere binnen 1km

🌳

Park

10 min lopen

✅ Selectiecriteria

Uw inkomen is niet hoger dan € 51537
Uw inkomen is niet hoger dan € 56910
18 jaar
Woningzoekenden met een Proefwonenurgentie of Woonkansurgentie kunnen geen reactie plaatsen
Meld je aan