
Bentismaheerd 99
9736EG Groningen, Beijum-Oost
€909,17
Per maand
Interesse in dit type woning?
Ontvang direct bericht als er nieuwe woningen beschikbaar komen die bij uw woonwensen passen.
Meld je aan voor woningalertsGratis en vrijblijvend
Historische informatie
Deze huurwoning was beschikbaar voor reacties van 06-10-2025 tot 14-10-2025. Deze woning is niet meer beschikbaar voor nieuwe reacties.
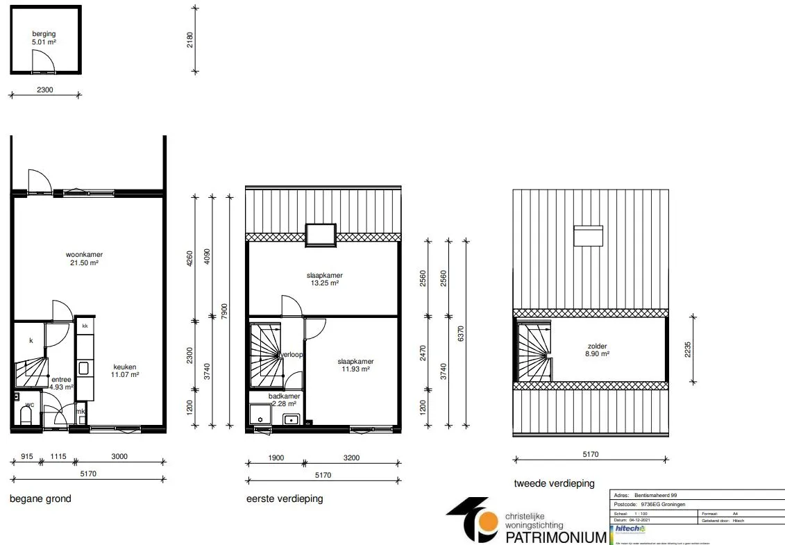
60.03m²
Woonoppervlakte
3
Kamers
Leegstand
Status
A
Energielabel
Omschrijving
Aangeboden door Patrimonium GroningenDeze eengezinswoning met een ruime woonkamer, 2 slaapkamers en een zolder ligt in de groene wijk Beijum. Ook is er een achtertuin aanwezig. In de nabije omgeving zijn diverse voorzieningen te vinden, waaronder scholen, openbaar vervoer, winkels, bibliotheek en een sporthal. Ook het "groene lint', een ruime groenstrook, ligt dichtbij. Binnen twintig minuten fietst u naar het centrum van de stad. De oostelijke ringweg is snel bereikbaar, van waaruit andere uitvalswegen bereikbaar zijn.
Beijum-Oost is onderdeel van wijkvernieuwing. Er wordt gestreefd naar een diverse wijk. Mensen met een inkomen tussen € 49.670,00 en € 67.366,00 voor een eenpersoonshuishouden en tussen € 54.848,00 en € 89.821,00 voor een meerpersoonshuishouden, komen als eerst in aanmerking voor deze woning. Heeft u verdere vragen over de regeling, dan kunt u naar: Wijkvernieuwing op z’n Gronings - Wijkvernieuwing Groningen
De huuringangsdatum is 14 november 2025.
Minimaal inkomen voor deze woning: • Voor 1 persoon: € 28.375,- • Voor 1 persoon met AOW: € 27.775,- • Voor 2 of meer personen (inclusief inwonende kinderen): € 38.500,- • Voor 2 of meer personen met AOW: € 37.350,- |
📋 Specificaties
Type
Woonruimte
Soort woning
Tussenwoning
Verdieping
1
Lift
❌ Nee
🏠 Vertrekken
💰 Prijsopbouw
📍 Locatie
OV
5 min lopen naar station
Winkels
2 min lopen
Scholen
Meerdere binnen 1km
Park
10 min lopen