Bentismaheerd 125 9736EH Groningen

Bentismaheerd 125
9736EH Groningen, Beijum-Oost

€942,08

Per maand

Interesse in dit type woning?

Ontvang direct bericht als er nieuwe woningen beschikbaar komen die bij uw woonwensen passen.

Meld je aan voor woningalerts

Gratis en vrijblijvend

Historische informatie

Deze huurwoning was beschikbaar voor reacties van 08-03-2026 tot 13-03-2026. Deze woning is niet meer beschikbaar voor nieuwe reacties.

🏠

79.75m²

Woonoppervlakte

🛏️

4

Kamers

Leegstand

Status

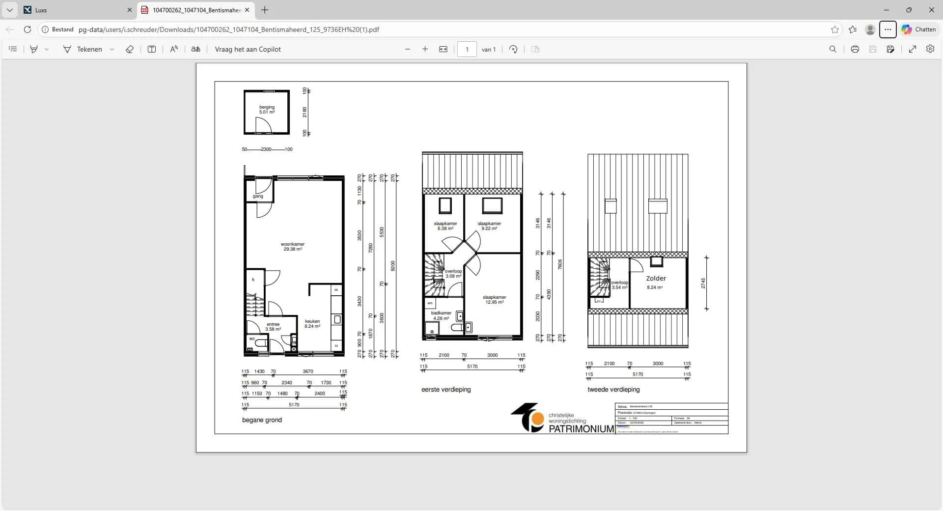
Mooie eengezinswoning met 3 slaapkamers in de wijk Beijum. De woning wordt voorzien van een nieuwe keuken, toilet en badkamer. U woont dichtbij scholen, winkels en uitvalswegen. 

De nieuwe huuringangsdatum is 2-4-2026.

Beijum-Oost is onderdeel van wijkvernieuwing. Er wordt gestreefd naar een diverse wijk. Mensen met een inkomen tussen € 51.537,00 en € 70.149,00 voor een eenpersoonshuishouden en tussen € 56.910,00 en € 93.531,00 voor een meerpersoonshuishouden, komen als eerst in aanmerking voor deze woning. Heeft u verdere vragen over de regeling, dan kunt u naar: Wijkvernieuwing op z’n Gronings - Wijkvernieuwing Groningen

De advertentie is gewijzigd op 09-03-2026 08:45:41.

📋 Specificaties

Type

Woonruimte

Soort woning

Tussenwoning

Verdieping

0

Lift

❌ Nee

🏠 Vertrekken

Toilet 1x (1.08m²)
Badkamer 1x (4.26m²)
Berging 1x (5.01m²)
Slaapkamer 3x (28.55m²)
Zolder 1x (8.24m²)
Keuken 1x (8.24m²)
Woonkamer 1x (29.38m²)

💰 Prijsopbouw

Niet subsidiabele servicekosten €9,15

📍 Locatie

Kaart laden...

🚉

OV

5 min lopen naar station

🏬

Winkels

2 min lopen

🏫

Scholen

Meerdere binnen 1km

🌳

Park

10 min lopen

✅ Selectiecriteria

Uw inkomen is passend
Uw inkomen is niet hoger dan € 70149
Uw inkomen is niet hoger dan € 93531
18 jaar
Woningzoekenden met een Proefwonenurgentie of Woonkansurgentie kunnen geen reactie plaatsen
Meld je aan