Amkemaheerd 425 9736KE Groningen

Amkemaheerd 425
9736KE Groningen, Beijum-Oost

€762,95

Per maand

Interesse in dit type woning?

Ontvang direct bericht als er nieuwe woningen beschikbaar komen die bij uw woonwensen passen.

Meld je aan voor woningalerts

Gratis en vrijblijvend

Historische informatie

Deze huurwoning was beschikbaar voor reacties van 01-03-2026 tot 06-03-2026. Deze woning is niet meer beschikbaar voor nieuwe reacties.

🏠

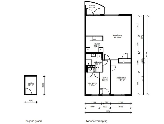
49.01m²

Woonoppervlakte

🛏️

3

Kamers

Leegstand

Status

Mooie seniorenwoning met 2 slaapkamers in Beijum. De woning wordt voorzien van een nieuwe badkamer. U woont dichtbij winkels, openbaar vervoer en natuurgebied Beijumerbos. Ook woont u dichtbij uitvalswegen. 

De nieuwe huuringangsdatum is 30-3-2026.

Beijum-Oost is onderdeel van wijkvernieuwing. Er wordt gestreefd naar een diverse wijk. Mensen met een inkomen tussen € 51,537,00 en € 70.149,00 voor een eenpersoonshuishouden en tussen € 56.910,00 en € 93.531,00 voor een meerpersoonshuishouden, komen als eerst in aanmerking voor deze woning. Heeft u verdere vragen over de regeling, dan kunt u naar: Wijkvernieuwing op z’n Gronings - Wijkvernieuwing Groningen

Minimaal inkomen voor deze woning:
• geen eisen

📋 Specificaties

Type

Woonruimte

Soort woning

Galerijflat

Verdieping

3

Lift

✅ Ja

🏠 Vertrekken

Berging 1x (3.61m²)
Keuken 1x (4.82m²)
Slaapkamer 2x (16.69m²)
Woonkamer 1x (27.5m²)

💰 Prijsopbouw

Niet subsidiabele servicekosten €42,93
Warmte €7,00

📍 Locatie

Kaart laden...

🚉

OV

5 min lopen naar station

🏬

Winkels

2 min lopen

🏫

Scholen

Meerdere binnen 1km

🌳

Park

10 min lopen

✅ Selectiecriteria

Uitsluitend voor huishoudens zonder inwonende kinderen
Uw inkomen is niet hoger dan € 70149
Uw inkomen is niet hoger dan € 93531
vanaf 60 jaar
Woningzoekenden met een Proefwonenurgentie of Woonkansurgentie kunnen geen reactie plaatsen
Meld je aan