Claremaheerd 3 9736LB Groningen

Claremaheerd 3
9736LB Groningen, Beijum-Oost

€722,68

Per maand

Interesse in dit type woning?

Ontvang direct bericht als er nieuwe woningen beschikbaar komen die bij uw woonwensen passen.

Meld je aan voor woningalerts

Gratis en vrijblijvend

Historische informatie

Deze huurwoning was beschikbaar voor reacties van 28-12-2025 tot 02-01-2026. Deze woning is niet meer beschikbaar voor nieuwe reacties.

🏠

35m²

Woonoppervlakte

🛏️

2

Kamers

Leegstand

Status

🌟

B

Energielabel

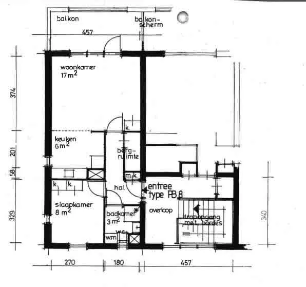
Leuk appartement met een balkon. Het heeft een ruime woonkamer en 1 slaapkamer. Het appartement is alleen per trap te bereiken. Een berging bevindt zich op de begane grond, een eind bij het appartement vandaan. De woning bevindt zich in de groene wijk Beijum dichtbij winkels, scholen en natuurgebied Kardinge. 

De nieuwe huuringangsdatum is 14 januari 2026.

Beijum-Oost is onderdeel van wijkvernieuwing. Er wordt gestreefd naar een diverse wijk. Mensen met een inkomen tussen € 49.670,00 en € 67.366,00 voor een eenpersoonshuishouden en tussen € 54.848,00 en € 89.821,00 voor een meerpersoonshuishouden, komen als eerst in aanmerking voor deze woning. Heeft u verdere vragen over de regeling, dan kunt u naar: Wijkvernieuwing op z’n Gronings - Wijkvernieuwing Groningen

📋 Specificaties

Type

Woonruimte

Soort woning

Galerijflat

Verdieping

3

Lift

❌ Nee

🏠 Vertrekken

Woonkamer 1x (0m²)
Slaapkamer 1x (8m²)

💰 Prijsopbouw

Niet subsidiabele servicekosten €52,60
Water €10,00

📍 Locatie

Kaart laden...

🚉

OV

5 min lopen naar station

🏬

Winkels

2 min lopen

🏫

Scholen

Meerdere binnen 1km

🌳

Park

10 min lopen

✅ Selectiecriteria

Uw inkomen is niet hoger dan € 70149
Uw inkomen is niet hoger dan € 93531
18 jaar
Woningzoekenden met een Proefwonenurgentie of Woonkansurgentie kunnen geen reactie plaatsen
Meld je aan