Claremaheerd 41 9736LC Groningen

Claremaheerd 41
9736LC Groningen, Beijum-Oost

€775,62

Per maand

Interesse in dit type woning?

Ontvang direct bericht als er nieuwe woningen beschikbaar komen die bij uw woonwensen passen.

Meld je aan voor woningalerts

Gratis en vrijblijvend

Historische informatie

Deze huurwoning was beschikbaar voor reacties van 10-12-2025 tot 15-12-2025. Deze woning is niet meer beschikbaar voor nieuwe reacties.

🏠

67m²

Woonoppervlakte

🛏️

4

Kamers

Leegstand

Status

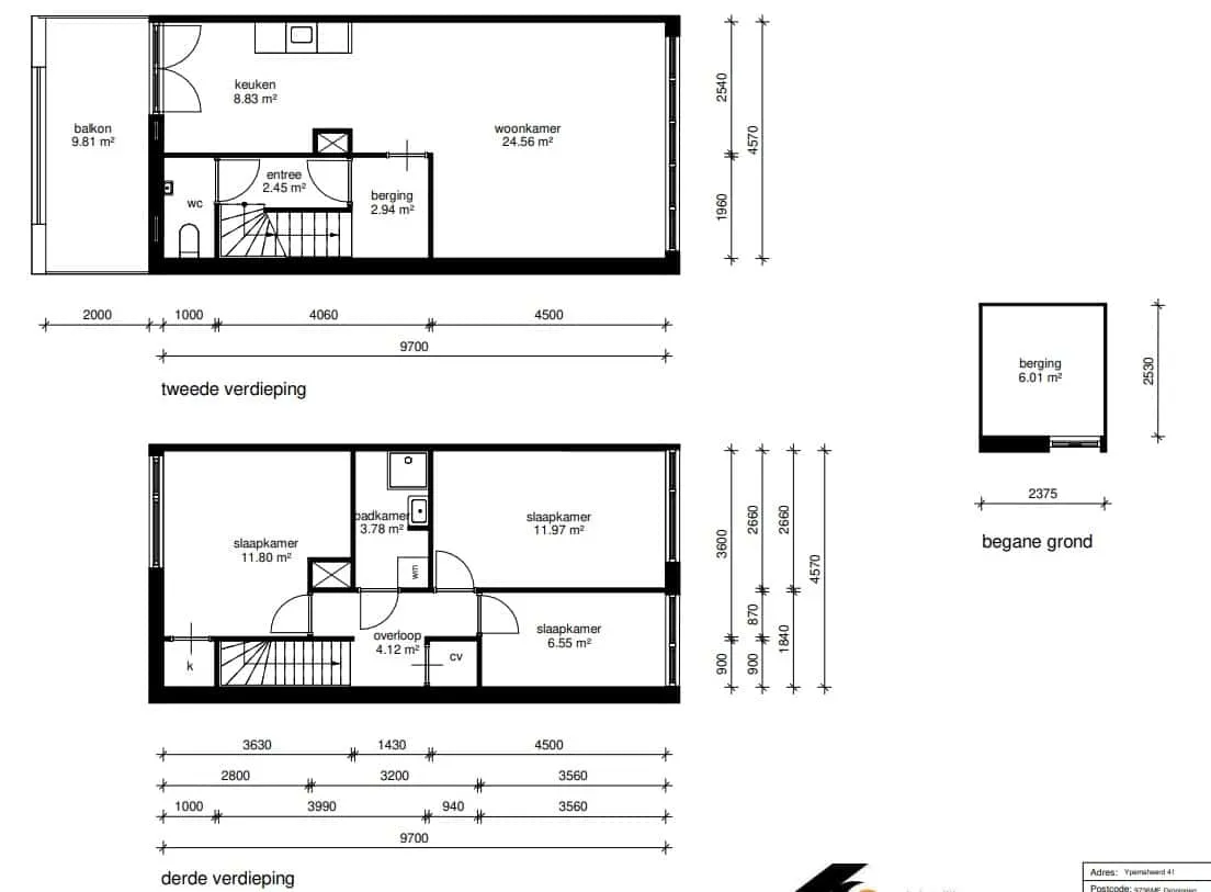
Leuk appartement met een balkon, verdeeld over 2 woonlagen. Het heeft een ruime woonkamer met open keuken en 3 slaapkamers op de verdieping, waarvan 1 kleine. U woont op de bovenste verdieping van het complex, die alleen per trap te bereiken is. Een berging bevindt zich op de begane grond, een eind bij het appartement vandaan. De woning bevindt zich in de groene wijk Beijum dichtbij winkels, scholen en natuurgebied Kardinge. In de woning wordt het keukenblok vervangen en er vindt een toilet renovatie plaats.

De nieuwe huuringangsdatum is 19 januari 2026.

Beijum-Oost is onderdeel van wijkvernieuwing. Er wordt gestreefd naar een diverse wijk. Mensen met een inkomen tussen € 49.670,00 en € 67.366,00 voor een eenpersoonshuishouden en tussen € 54.848,00 en € 89.821,00 voor een meerpersoonshuishouden, komen als eerst in aanmerking voor deze woning. Heeft u verdere vragen over de regeling, dan kunt u naar: Wijkvernieuwing op z’n Gronings - Wijkvernieuwing Groningen

De advertentie is gewijzigd op 11-12-2025 14:36:00.

📋 Specificaties

Type

Woonruimte

Soort woning

Galerijflat

Verdieping

3

Lift

❌ Nee

🏠 Vertrekken

Toilet 1x (1.96m²)
Badkamer 1x (3.78m²)
Berging 1x (6.01m²)
Slaapkamer 3x (30.32m²)
Keuken 1x (8.83m²)
Woonkamer 1x (24.56m²)

💰 Prijsopbouw

Niet subsidiabele servicekosten €52,60
Warmte €10,00

📍 Locatie

Kaart laden...

🚉

OV

5 min lopen naar station

🏬

Winkels

2 min lopen

🏫

Scholen

Meerdere binnen 1km

🌳

Park

10 min lopen

✅ Selectiecriteria

Uw inkomen is passend
Uw inkomen is niet hoger dan € 70149
Uw inkomen is niet hoger dan € 93531
18 jaar
Woningzoekenden met een Proefwonenurgentie of Woonkansurgentie kunnen geen reactie plaatsen
Meld je aan