Hiddemaheerd 92 A 9737JW Groningen

Hiddemaheerd 92 A
9737JW Groningen, Beijum-West

€737,22

Per maand

Interesse in dit type woning?

Ontvang direct bericht als er nieuwe woningen beschikbaar komen die bij uw woonwensen passen.

Meld je aan voor woningalerts

Gratis en vrijblijvend

Historische informatie

Deze huurwoning was beschikbaar voor reacties van 15-01-2026 tot 20-01-2026. Deze woning is niet meer beschikbaar voor nieuwe reacties.

🏠

42.66m²

Woonoppervlakte

🛏️

2

Kamers

Leegstand

Status

🌟

B

Energielabel

Dit betreft een knusse woning met 1 slaapkamer en tuin op de begane grond. De woning bevindt zich in de groene wijk Beijum. U woont dichtbij winkels, openbaar vervoer en Kardinge. 

De nieuwe ingangsdatum is per 13 februari 2026.

Minimaal inkomen voor deze woning:
• geen eisen
Maximaal inkomen voor deze woning (dit geldt niet voor wijkvernieuwingsurgenties en rolstoelindicaties):
• Voor 1 persoon € 51.537,-
• Voor 2 of meer personen € 56.910,-

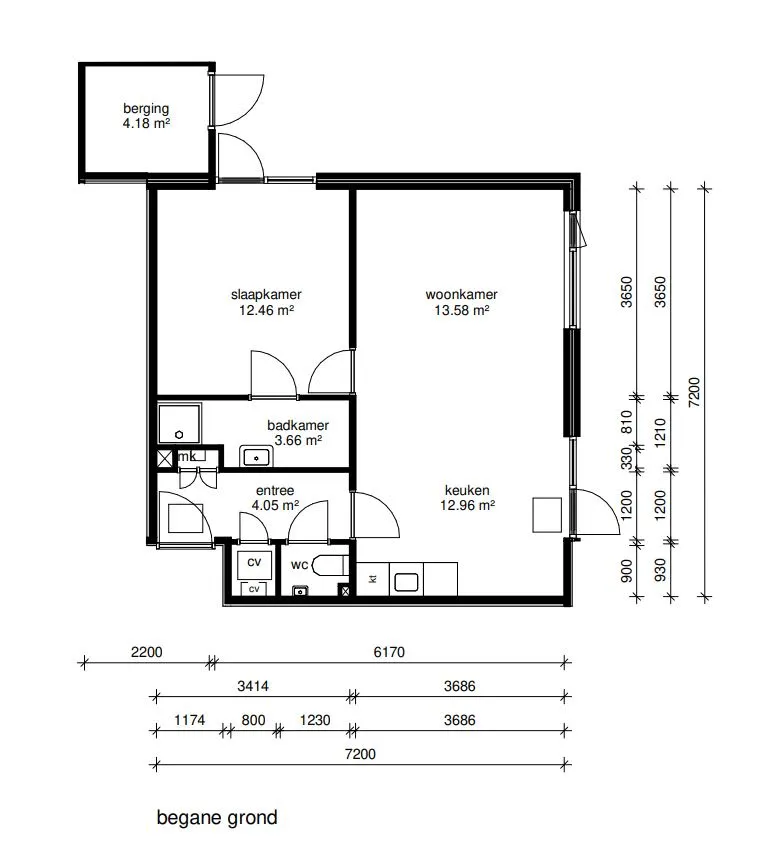
📋 Specificaties

Type

Woonruimte

Soort woning

Benedenwoning

Verdieping

1

Lift

❌ Nee

🏠 Vertrekken

Toilet 1x (1.1m²)
Badkamer 1x (3.66m²)
Berging 1x (4.18m²)
Slaapkamer 1x (12.46m²)
Keuken 1x (12.96m²)
Woonkamer 1x (13.58m²)

💰 Prijsopbouw

Niet subsidiabele servicekosten €24,20

📍 Locatie

Kaart laden...

🚉

OV

5 min lopen naar station

🏬

Winkels

2 min lopen

🏫

Scholen

Meerdere binnen 1km

🌳

Park

10 min lopen

✅ Selectiecriteria

Uw inkomen is niet hoger dan € 51537
Uw inkomen is niet hoger dan € 56910
18 jaar
Woningzoekenden met een Proefwonenurgentie of Woonkansurgentie kunnen geen reactie plaatsen
Meld je aan