Radijsstraat 11 A 9741BJ Groningen

Radijsstraat 11 A
9741BJ Groningen, Tuinwijk

€653,32

Per maand

Interesse in dit type woning?

Ontvang direct bericht als er nieuwe woningen beschikbaar komen die bij uw woonwensen passen.

Meld je aan voor woningalerts

Gratis en vrijblijvend

Historische informatie

Deze huurwoning was beschikbaar voor reacties van 06-01-2026 tot 13-01-2026. Deze woning is niet meer beschikbaar voor nieuwe reacties.

🏠

36.31m²

Woonoppervlakte

🛏️

2

Kamers

Leegstand

Status

TIJDELIJKE WONING

Het betreft hier verhuur krachtens de leegstandswet. Uw inschrijving bij Woningnet (inschrijfduur) komt niet te vervallen bij acceptatie van deze woning. Let op: de woning is per 2 februari 2026 te huur voor 6 maanden. Daarna bent u zelf verantwoordelijk voor het vinden van andere woonruimte.

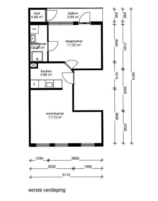
Knus appartement met 1 slaapkamer op de 2e woonlaag in de Tuinwijk. In de omgeving zijn diverse voorzieningen te vinden, waaronder een winkelcentrum, openbaar vervoer en het Noorderplantsoen. In tien minuten fietst u naar het centrum van de stad. Let op: dit betreft een gehorige woning. 

De woning is per 2 februari 2026 te huur voor een duur van 6 maanden.

Minimaal inkomen voor deze woning:
• geen eisen
Maximaal inkomen voor deze woning (dit geldt niet voor wijkvernieuwingsurgenties en rolstoelindicaties):
• Voor 1 persoon € 51.537,-
• Voor 2 of meer personen € 56.910,-

 

📋 Specificaties

Type

Woonruimte

Soort woning

Bovenwoning

Verdieping

2

Lift

❌ Nee

🏠 Vertrekken

Keuken 1x (3.96m²)
Slaapkamer 1x (11.33m²)
Woonkamer 1x (17.73m²)

💰 Prijsopbouw

Niet subsidiabele servicekosten €39,88
Warmte €115,24

📍 Locatie

Kaart laden...

🚉

OV

5 min lopen naar station

🏬

Winkels

2 min lopen

🏫

Scholen

Meerdere binnen 1km

🌳

Park

10 min lopen

✅ Selectiecriteria

Uw inkomen is niet hoger dan € 51537
Uw inkomen is niet hoger dan € 56910
tot 23 jaar
18 jaar
Woningzoekenden met een Proefwonenurgentie of Woonkansurgentie kunnen geen reactie plaatsen
Meld je aan