
Radijsstraat 80
9741BS Groningen, Tuinwijk
€693,79
Per maand
Interesse in dit type woning?
Ontvang direct bericht als er nieuwe woningen beschikbaar komen die bij uw woonwensen passen.
Meld je aan voor woningalertsGratis en vrijblijvend
Historische informatie
Deze huurwoning was beschikbaar voor reacties van 06-10-2025 tot 14-10-2025. Deze woning is niet meer beschikbaar voor nieuwe reacties.
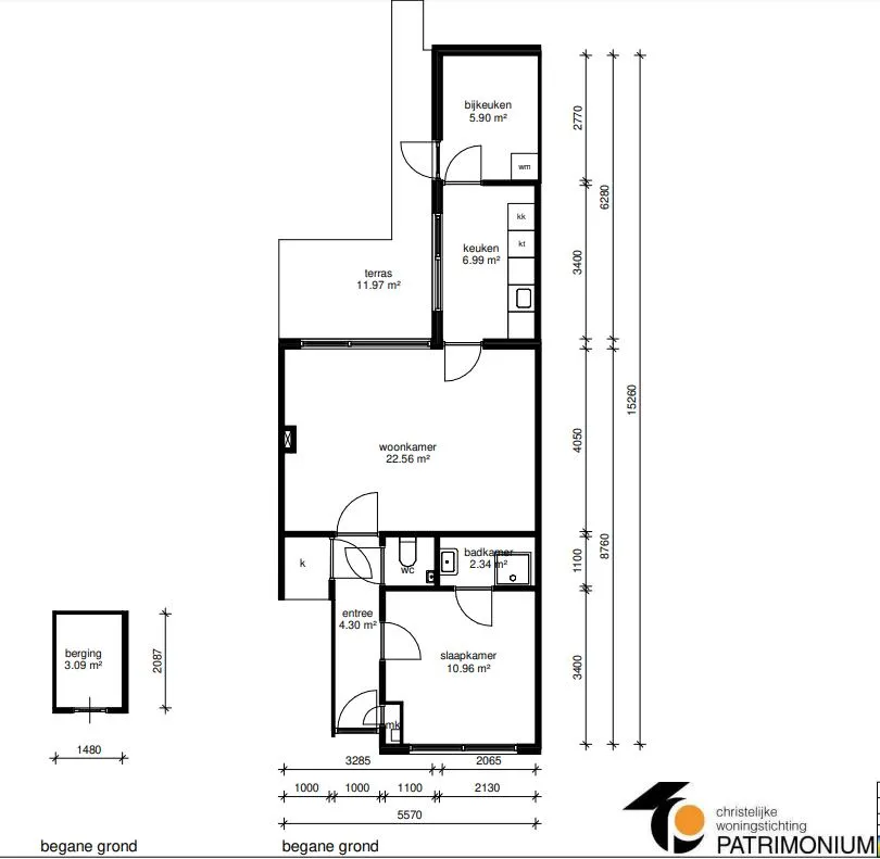
42.85m²
Woonoppervlakte
2
Kamers
Leegstand
Status
A
Energielabel
Omschrijving
Aangeboden door Patrimonium GroningenHet betreft hier verhuur krachtens de leegstandswet. Uw inschrijving bij Woningnet (inschrijfduur) komt niet te vervallen bij acceptatie van deze woning. Let op: de woning is per 11 november 2025 t/m 30 juni 2026 te huur. Daarna bent u zelf verantwoordelijk voor het vinden van andere woonruimte.
Knus appartement met 1 slaapkamer op de begane grond in de Tuinwijk. In de omgeving zijn diverse voorzieningen te vinden, waaronder een winkelcentrum, openbaar vervoer en het Noorderplantsoen. In tien minuten fietst u naar het centrum van de stad.
Let op: dit betreft een gehorige woning.
De woning is te huur per 11 november tot en met 30 juni 2026.
Minimaal inkomen voor deze woning:
• geen eisen
Maximaal inkomen voor deze woning (dit geldt niet voor wijkvernieuwingsurgenties en rolstoelindicaties):
• Voor 1 persoon € 49.669,-
• Voor 2 of meer personen € 54.847,-
📋 Specificaties
Type
Woonruimte
Soort woning
Benedenwoning
Verdieping
1
Lift
❌ Nee
🏠 Vertrekken
💰 Prijsopbouw
📍 Locatie
OV
5 min lopen naar station
Winkels
2 min lopen
Scholen
Meerdere binnen 1km
Park
10 min lopen