Wilgenlaan 148 9741BX Groningen

Wilgenlaan 148
9741BX Groningen, Tuinwijk

€741,04

Per maand

Interesse in dit type woning?

Ontvang direct bericht als er nieuwe woningen beschikbaar komen die bij uw woonwensen passen.

Meld je aan voor woningalerts

Gratis en vrijblijvend

Historische informatie

Deze huurwoning was beschikbaar voor reacties van 19-02-2026 tot 24-02-2026. Deze woning is niet meer beschikbaar voor nieuwe reacties.

🏠

52.78m²

Woonoppervlakte

🛏️

3

Kamers

Leegstand

Status

🌟

A

Energielabel

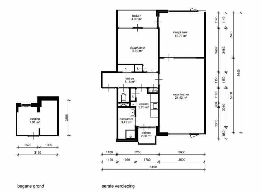
Leuke portiekwoning met twee slaapkamers, een inpandig balkon aan de achterzijde en een klein balkon aan de voorzijde. Er vindt een keukenrenovatie plaats. Deze woning ligt op de eerste woonlaag. In de omgeving bevinden zich diverse voorzieningen, waaronder winkelcentrum Paddepoel, scholen en openbaar vervoer. Op de fiets bent u binnen tien minuten in het centrum van de stad. De uitvalswegen zijn van hieruit snel bereikbaar. Er is een berging aanwezig.

  • Let op: Vanaf de ingangsdatum kan er in de woning alleen elektrisch gekookt worden. U bent zelf verantwoordelijk voor het aanschaffen van een geschikte kookplaat en pannen. De kookplaat mag een maximaal vermogen van 7000 watt (7 kW) hebben.

De nieuwe huuringangsdatum is 25 maart 2026

Minimaal inkomen voor deze woning:
• geen eisen
Maximaal inkomen voor deze woning (dit geldt niet voor wijkvernieuwingsurgenties en rolstoelindicaties):
• Voor 1 persoon € 51.537,-
• Voor 2 of meer personen € 56.910,-

 

📋 Specificaties

Type

Woonruimte

Soort woning

Portiekflat

Verdieping

1

Lift

❌ Nee

🏠 Vertrekken

Toilet 1x (0.99m²)
Badkamer 1x (3.41m²)
Keuken 1x (5.2m²)
Berging 1x (7.91m²)
Slaapkamer 2x (22.75m²)
Woonkamer 1x (21.42m²)

💰 Prijsopbouw

Niet subsidiabele servicekosten €28,02

📍 Locatie

Kaart laden...

🚉

OV

5 min lopen naar station

🏬

Winkels

2 min lopen

🏫

Scholen

Meerdere binnen 1km

🌳

Park

10 min lopen

✅ Selectiecriteria

Uw inkomen is niet hoger dan € 51537
Uw inkomen is niet hoger dan € 56910
18 jaar
Woningzoekenden met een Proefwonenurgentie of Woonkansurgentie kunnen geen reactie plaatsen
Meld je aan