Berkenlaan 66 9741JR Groningen

Berkenlaan 66
9741JR Groningen, Selwerd

€748,12

Per maand

Interesse in dit type woning?

Ontvang direct bericht als er nieuwe woningen beschikbaar komen die bij uw woonwensen passen.

Meld je aan voor woningalerts

Gratis en vrijblijvend

Historische informatie

Deze huurwoning was beschikbaar voor reacties van 19-01-2026 tot 26-01-2026. Deze woning is niet meer beschikbaar voor nieuwe reacties.

🏠

59m²

Woonoppervlakte

🛏️

3

Kamers

Leegstand

Status

🌟

A

Energielabel

Mooie seniorenwoning met 2 slaapkamers en een balkon in de Berkenflat in de wijk Selwerd. De woning bevindt zich op de 3e woonlaag en is per lift bereikbaar. U woont tegenover het winkelcentrum. Beide personen dienen minimaal 70 jaar te zijn. Inwonende kinderen zijn in deze woning niet toegestaan.   

Koken wordt op inductie gedaan en voor warmte dient u zich aan te melden bij Warmtestad. 

De nieuwe huuringangsdatum is per 24 februari 2026.

Minimaal inkomen voor deze woning:
• geen eisen
Maximaal inkomen voor deze woning (dit geldt niet voor wijkvernieuwingsurgenties en rolstoelindicaties):
• Voor 1 persoon € 51.537,-
• Voor 2 of meer personen € 56.910,-

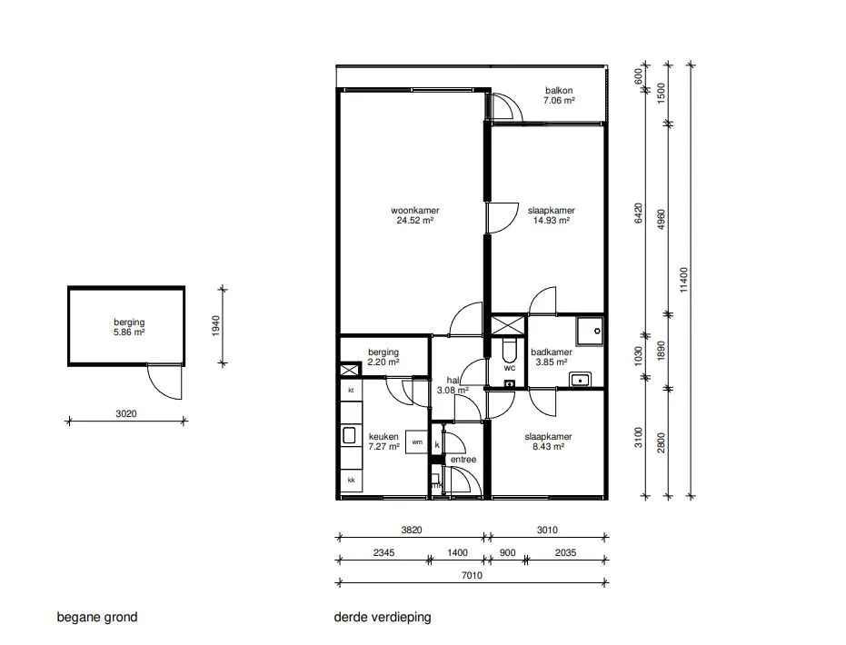
📋 Specificaties

Type

Woonruimte

Soort woning

Galerijflat

Verdieping

3

Lift

✅ Ja

🏠 Vertrekken

Toilet 1x (1.18m²)
Badkamer 1x (3.85m²)
Berging 1x (5.86m²)
Keuken 1x (7.27m²)
Slaapkamer 2x (23.36m²)
Woonkamer 1x (24.52m²)

💰 Prijsopbouw

Niet subsidiabele servicekosten €35,10

📍 Locatie

Kaart laden...

🚉

OV

5 min lopen naar station

🏬

Winkels

2 min lopen

🏫

Scholen

Meerdere binnen 1km

🌳

Park

10 min lopen

✅ Selectiecriteria

Uitsluitend voor huishoudens zonder inwonende kinderen
Uw inkomen is niet hoger dan € 51537
Uw inkomen is niet hoger dan € 56910
vanaf 70 jaar
Woningzoekenden met een Proefwonenurgentie of Woonkansurgentie kunnen geen reactie plaatsen
Meld je aan