Esdoornlaan 121 9741KB Groningen

Esdoornlaan 121
9741KB Groningen, Selwerd

€719,83

Per maand

Interesse in dit type woning?

Ontvang direct bericht als er nieuwe woningen beschikbaar komen die bij uw woonwensen passen.

Meld je aan voor woningalerts

Gratis en vrijblijvend

Historische informatie

Deze huurwoning was beschikbaar voor reacties van 02-11-2025 tot 07-11-2025. Deze woning is niet meer beschikbaar voor nieuwe reacties.

🏠

54.06m²

Woonoppervlakte

🛏️

3

Kamers

Leegstand

Status

🌟

A

Energielabel

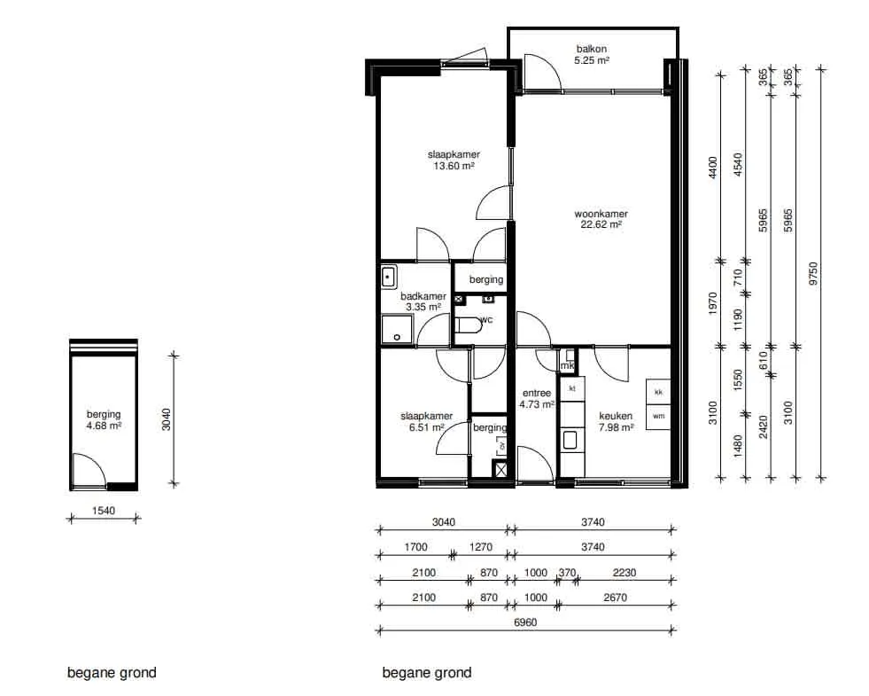
Knusse seniorenwoning met 2 slaapkamers en een balkon in de wijk Selwerd. De woning bevindt zich op de eerste woonlaag van het complex. Er heeft een keukenrenovatie plaatsgevonden. U woont dichtbij winkels, uitvalswegen en het openbaar vervoer. 

In dit complex dient u zich voor Warmte aan te melden bij WarmteStad.
Koken wordt op inductie gedaan, u bent zelf verantwoordelijk voor een geschikte kookplaat en pannen.

De woning is te huur per 17 november 2025.

Minimaal inkomen voor deze woning:
• geen eisen
Maximaal inkomen voor deze woning (dit geldt niet voor wijkvernieuwingsurgenties en rolstoelindicaties):
• Voor 1 persoon € 49.669,-
• Voor 2 of meer personen € 54.847,-

📋 Specificaties

Type

Woonruimte

Soort woning

Galerijflat

Verdieping

1

Lift

✅ Ja

🏠 Vertrekken

Badkamer 1x (3.35m²)
Berging 1x (4.68m²)
Slaapkamer 2x (20.11m²)
Keuken 1x (7.98m²)
Woonkamer 1x (22.62m²)

💰 Prijsopbouw

Subsidiabele servicekosten €21,75
Niet subsidiabele servicekosten €15,12

📍 Locatie

Kaart laden...

🚉

OV

5 min lopen naar station

🏬

Winkels

2 min lopen

🏫

Scholen

Meerdere binnen 1km

🌳

Park

10 min lopen

✅ Selectiecriteria

Uitsluitend voor huishoudens zonder inwonende kinderen
Uw inkomen is niet hoger dan € 49669
Uw inkomen is niet hoger dan € 54847
vanaf 60 jaar
Meld je aan