Esdoornlaan 154 9741KH Groningen

Esdoornlaan 154
9741KH Groningen, Selwerd

€785,10

Per maand

Interesse in dit type woning?

Ontvang direct bericht als er nieuwe woningen beschikbaar komen die bij uw woonwensen passen.

Meld je aan voor woningalerts

Gratis en vrijblijvend

Historische informatie

Deze huurwoning was beschikbaar voor reacties van 13-04-2026 tot 20-04-2026. Deze woning is niet meer beschikbaar voor nieuwe reacties.

🏠

55.51m²

Woonoppervlakte

🛏️

3

Kamers

Leegstand

Status

🌟

A

Energielabel

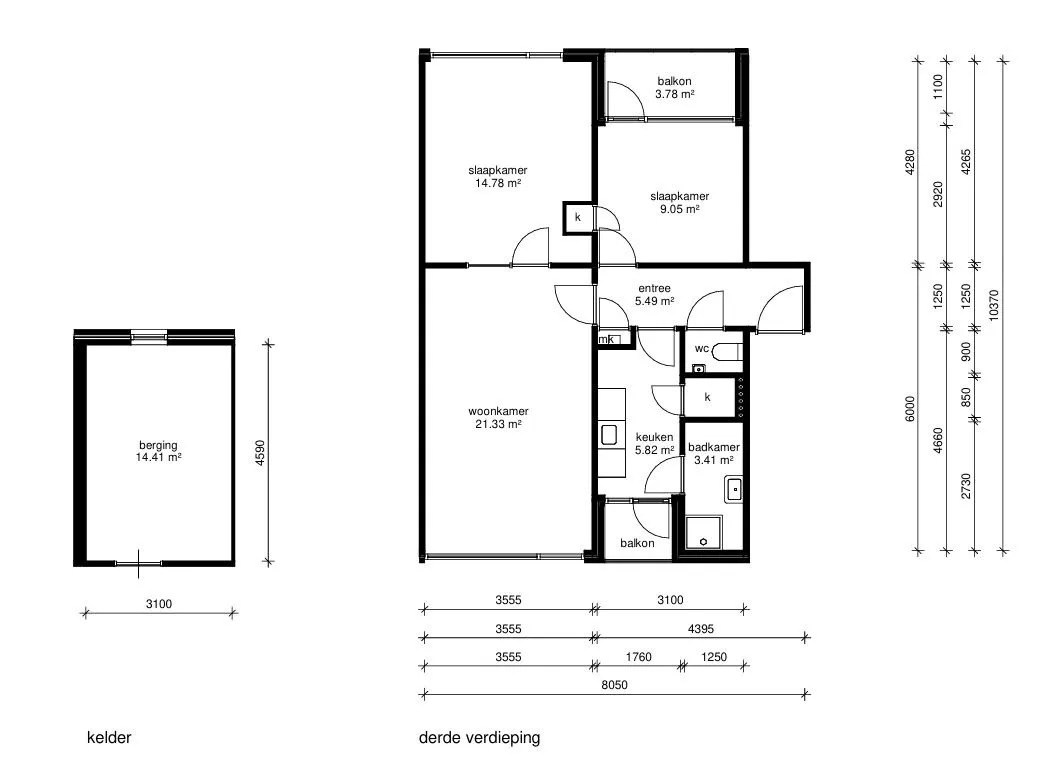
Mooi appartement – Selwerd

Op de derde woonlaag van dit appartementencomplex in Selwerd vindt u een leuk appartement met twee slaapkamers en twee balkons. Er is een ruime berging aanwezig.

De ligging is ideaal: scholen, een klein winkelcentrum en openbaar vervoer bevinden zich in de directe omgeving. Met de fiets bent u binnen 15 minuten in het bruisende centrum van Groningen.

Patrimonium is voornemens om deze woning aan te sluiten op het warmtenet van de stad Groningen. Als u deze woning accepteert realiseert u zich dan dat u een leveringscontract met Warmtestad moet afsluiten zodra de woning op het warmtenet is aangesloten.
Let op: vanaf de ingangsdatum kan er in de woning alleen elektrisch gekookt worden. U bent zelf verantwoordelijk voor het aanschaffen van een geschikte kookplaat en pannen.

Beschikbaar vanaf: 20 mei 2026.

Minimaal inkomen voor deze woning:
• Voor 1 persoon: € 29.400,-
• Voor 1 persoon met AOW: € 28.775,-
• Voor 2 personen (inclusief inwonende kinderen): € 39.925,-,-
• Voor 2 personen met AOW: € 38.650,-
• Voor 3 of meer personen (inclusief inwonende kinderen): geen eisen
Maximaal inkomen voor deze woning (dit geldt niet voor wijkvernieuwingsurgenties en rolstoelindicaties):
• Voor 1 persoon € 51.537,-
• Voor 2 of meer personen € 56.910,-

📋 Specificaties

Type

Woonruimte

Soort woning

Portiekflat

Verdieping

3

Lift

❌ Nee

🏠 Vertrekken

Toilet 1x (1.12m²)
Badkamer 1x (3.41m²)
Keuken 1x (5.82m²)
Slaapkamer 2x (23.83m²)
Berging 1x (14.42m²)
Woonkamer 1x (21.33m²)

💰 Prijsopbouw

Niet subsidiabele servicekosten €20,96

📍 Locatie

Kaart laden...

🚉

OV

5 min lopen naar station

🏬

Winkels

2 min lopen

🏫

Scholen

Meerdere binnen 1km

🌳

Park

10 min lopen

✅ Selectiecriteria

Uw inkomen is passend
Uw inkomen is niet hoger dan € 51537
Uw inkomen is niet hoger dan € 56910
18 jaar
Woningzoekenden met een Proefwonenurgentie of Woonkansurgentie kunnen geen reactie plaatsen
Meld je aan