Prunusstraat 47 9741LB Groningen

Prunusstraat 47
9741LB Groningen, Selwerd

€909,25

Per maand

Interesse in dit type woning?

Ontvang direct bericht als er nieuwe woningen beschikbaar komen die bij uw woonwensen passen.

Meld je aan voor woningalerts

Gratis en vrijblijvend

Historische informatie

Deze huurwoning was beschikbaar voor reacties van 08-12-2025 tot 15-12-2025. Deze woning is niet meer beschikbaar voor nieuwe reacties.

🏠

89m²

Woonoppervlakte

🛏️

5

Kamers

Leegstand

Status

🌟

B

Energielabel

LET OP: dit betreft een grote woning geschikt voor tijdelijke bewoning. Wij zijn daarom op zoek naar een huishouden van 2 personen. Inwonende kinderen zijn niet toegestaan. Uit de reacties zullen wij zelf een geschikte kandidaat kiezen. De volgorde is dus niet bepalend voor de toewijzing van deze woning. 

Het betreft hier verhuur krachtens de leegstandswet. Uw inschrijving bij Woningnet (inschrijfduur) komt niet te vervallen bij acceptatie van deze woning. Let op: de woning is per direct tot en met 31 december 2025 te huur. Daarna bent u zelf verantwoordelijk voor het vinden van andere woonruimte. 

Leuke, zeer ruime bovenwoning in Selwerd. De woning heeft 4 slaapkamers. In de omgeving zijn diverse voorzieningen te vinden, waaronder een winkelcentrum, openbaar vervoer en het Noorderplantsoen. In tien minuten fietst u naar het centrum van de stad. 

De woning is per direct tot en met 31 december 2026 te huur.

Minimaal inkomen voor deze woning:
• Voor 1 persoon: € 28.375,-
• Voor 1 persoon met AOW: € 27.775,-
• Voor 2 of meer personen (inclusief inwonende kinderen): € 38.500,-
• Voor 2 of meer personen met AOW: € 37.350,-
Maximaal inkomen voor deze woning (dit geldt niet voor wijkvernieuwingsurgenties en rolstoelindicaties):
• Voor 1 persoon € 49.669,-
• Voor 2 of meer personen € 54.847,-

📋 Specificaties

Type

Woonruimte

Soort woning

Tijdelijke woning

Verdieping

2

Lift

❌ Nee

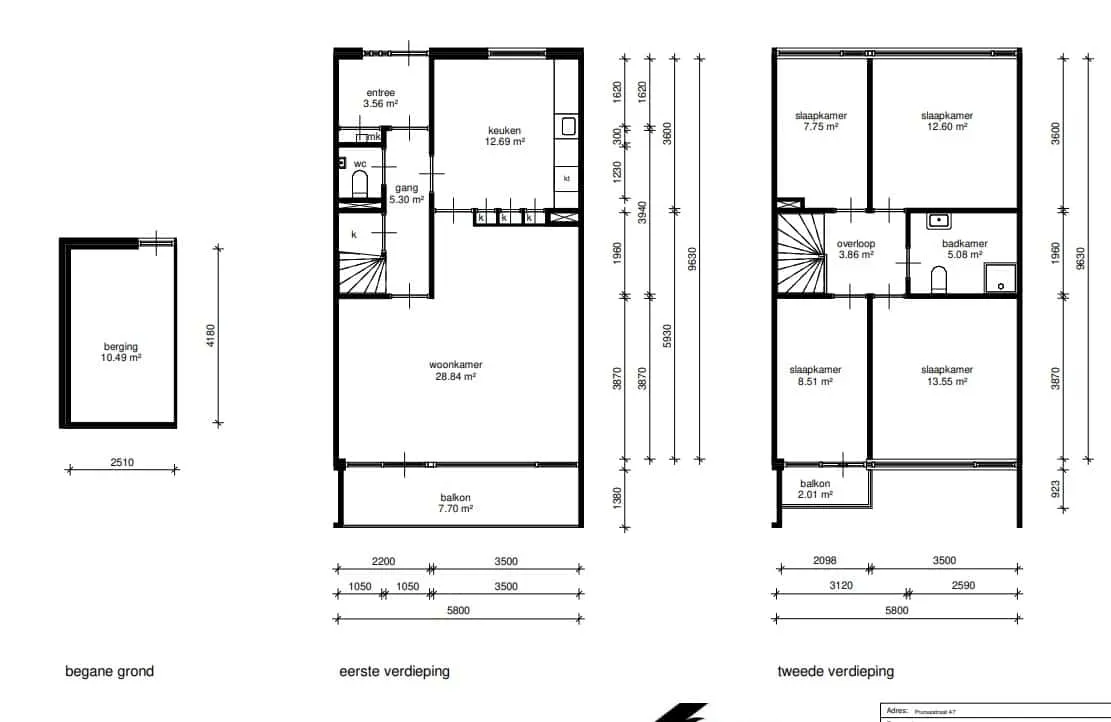
🏠 Vertrekken

Toilet 1x (1.55m²)
Slaapkamer 4x (42.41m²)
Berging 1x (10.49m²)
Keuken 1x (12.69m²)
Woonkamer 1x (28.84m²)

💰 Prijsopbouw

Niet subsidiabele servicekosten €29,90

📍 Locatie

Kaart laden...

🚉

OV

5 min lopen naar station

🏬

Winkels

2 min lopen

🏫

Scholen

Meerdere binnen 1km

🌳

Park

10 min lopen

✅ Selectiecriteria

Uitsluitend voor huishoudens zonder inwonende kinderen
Uw inkomen is passend
Uw inkomen is niet hoger dan € 51537
Uw inkomen is niet hoger dan € 56910
18 jaar
Woningzoekenden met een Proefwonenurgentie of Woonkansurgentie kunnen geen reactie plaatsen
Meld je aan