Siersteenlaan 359 -6 9743ER Groningen

Siersteenlaan 359 -6
9743ER Groningen, Vinkhuizen-Noord

€719,16

Per maand

Interesse in dit type woning?

Ontvang direct bericht als er nieuwe woningen beschikbaar komen die bij uw woonwensen passen.

Meld je aan voor woningalerts

Gratis en vrijblijvend

Historische informatie

Deze huurwoning was beschikbaar voor reacties van 07-04-2025 tot 15-04-2025. Deze woning is niet meer beschikbaar voor nieuwe reacties.

🏠

57.99m²

Woonoppervlakte

🛏️

3

Kamers

Verhuurd

Status

🌟

A

Energielabel

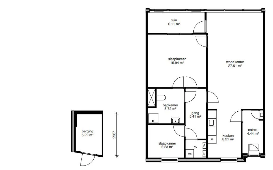
Leuke woning met een ruime woonkamer en 1 grote en een kleine slaapkamer (2 totaal) op de bovenste woonlaag in Vinkhuizen. De woning heeft een inpandig balkon en is per lift of met de trap bereikbaar. In de omgeving vindt u het park Roege Bos, scholen, een winkelcentrum en openbaar vervoer. Het centrum van de stad is op de fiets in een kwartier bereikbaar.

Vanaf de ingangsdatum kan er alleen elektrisch gekookt worden in deze woning. U bent zelf verantwoordelijk voor de aanschaf van een geschikte kookplaat en pannen.

De nieuwe huuringangsdatum is 13 juni 2025.

Minimaal inkomen voor deze woning:
• geen eisen
Maximaal inkomen voor deze woning (dit geldt niet voor wijkvernieuwingsurgenties en rolstoelindicaties):
• Voor 1 persoon € 49.669,-
• Voor 2 of meer personen € 54.847,-

 

📋 Specificaties

Type

Woonruimte

Soort woning

Galerijflat

Verdieping

4

Lift

✅ Ja

🏠 Vertrekken

Berging 1x (5.22m²)
Slaapkamer 2x (22.17m²)
Keuken 1x (8.21m²)
Woonkamer 1x (27.61m²)

💰 Prijsopbouw

Subsidiabele servicekosten €17,70
Niet subsidiabele servicekosten €18,50

📍 Locatie

Kaart laden...

🚉

OV

5 min lopen naar station

🏬

Winkels

2 min lopen

🏫

Scholen

Meerdere binnen 1km

🌳

Park

10 min lopen

✅ Selectiecriteria

Maximum inkomen eenpersoonshuishouden muv wijkvernieuwingsurgenten en indicaties GRN
Maximum inkomen meerpersoonshuishouden muv wijkvernieuwingsurgenten en indicaties GRN
Niet geschikt voor urgentie Proefwonen of Woonkans
Meld je aan