Opaalstraat 69 9743HL Groningen

Opaalstraat 69
9743HL Groningen, Vinkhuizen-Noord

€942,13

Per maand

Interesse in dit type woning?

Ontvang direct bericht als er nieuwe woningen beschikbaar komen die bij uw woonwensen passen.

Meld je aan voor woningalerts

Gratis en vrijblijvend

Historische informatie

Deze huurwoning was beschikbaar voor reacties van 14-04-2026 tot 20-04-2026. Deze woning is niet meer beschikbaar voor nieuwe reacties.

🏠

72.53m²

Woonoppervlakte

🛏️

5

Kamers

Leegstand

Status

🌟

A

Energielabel

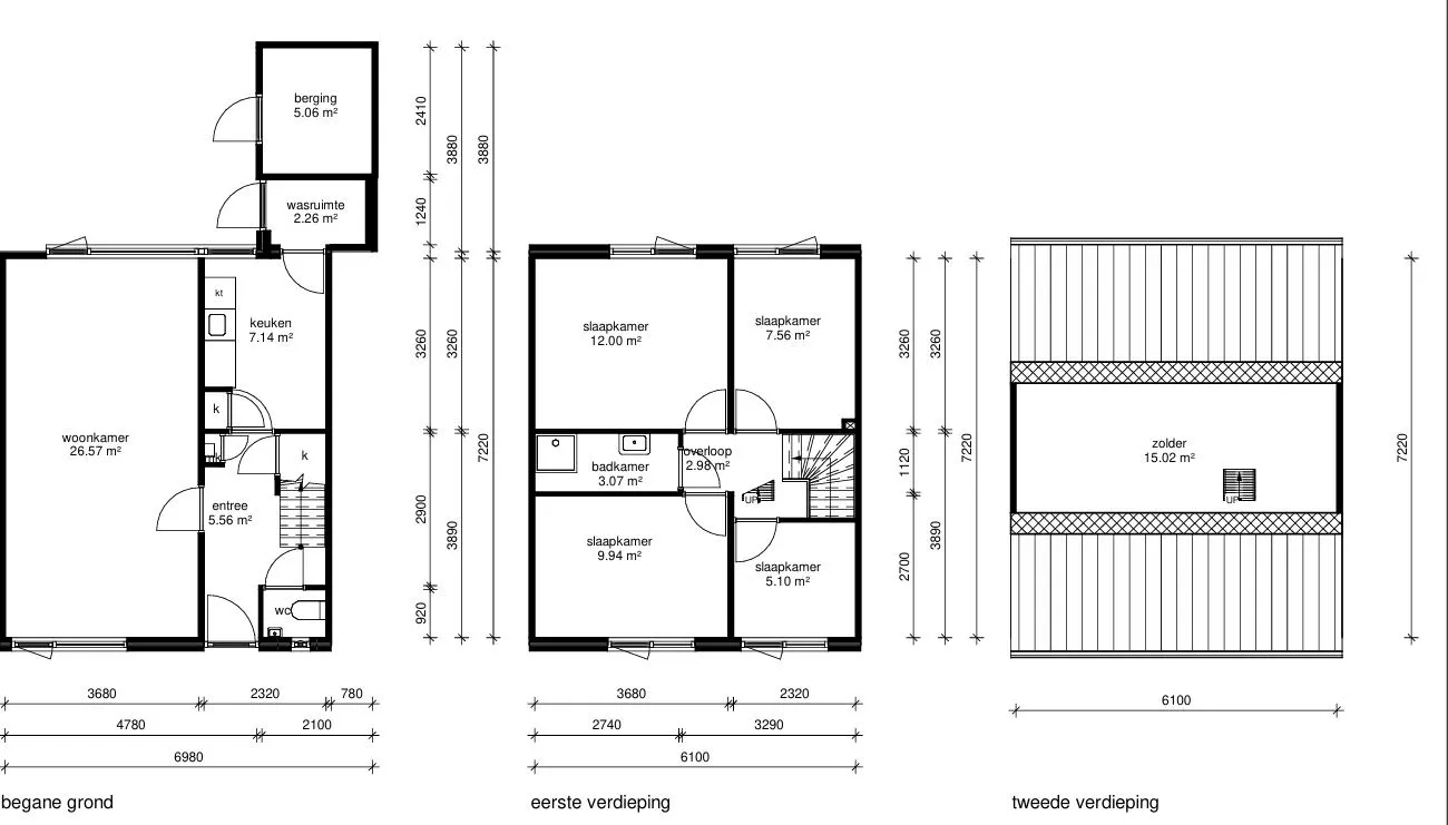
Mooie eengezinswoning met 4 slaapkamers, een zolder en een achtertuin in Vinkhuizen. In de directe omgeving bevinden zich diverse voorzieningen, waaronder scholen, openbaar vervoer en het winkelcentrum Vinkhuizen. U fietst in een kwartier naar het centrum van de stad. In de woning vinden een badkamer- en keukenrenovatie plaats.

Patrimonium is voornemens om deze woning aan te sluiten op het warmtenet van de stad Groningen. Als u deze woning accepteert realiseert u zich dan dat u een leveringscontract met Warmtestad moet afsluiten zodra de woning op het warmtenet is aangesloten.
Let op: vanaf de ingangsdatum kan er in de woning alleen elektrisch gekookt worden. U bent zelf verantwoordelijk voor het aanschaffen van een geschikte kookplaat en pannen.

De nieuwe huuringangsdatum is per 12 juni 2026.

Minimaal inkomen voor deze woning:
• Voor 2 of meer personen (inclusief inwonende kinderen): € 39.925,-
• Voor 2 of meer personen met AOW: € 38.650,-
Maximaal inkomen voor deze woning (dit geldt niet voor wijkvernieuwingsurgenties en rolstoelindicaties):
• Voor 2 of meer personen € 56.910,-

  • Deze woningen zijn bedoeld voor gezinnen met inwonende kinderen.
    Zijn de kinderen niet op jouw adres ingeschreven? Dan is er een officieel bewijs van een gelijkwaardigezorgverdeling (50/50) nodig. Dit bewijs kan geleverd worden in de vorm van: een ouderschapsplan of een gerechtelijke uitspraak of beschikking waarin de zorgverdeling is vastgelegd.

📋 Specificaties

Type

Woonruimte

Soort woning

Tussenwoning

Verdieping

1

Lift

❌ Nee

🏠 Vertrekken

Toilet 1x (1.15m²)
Wasruimte 1x (2.26m²)
Badkamer 1x (3.07m²)
Berging 1x (5.06m²)
Slaapkamer 4x (34.6m²)
Keuken 1x (7.14m²)
Zolder 1x (15.02m²)
Woonkamer 1x (26.57m²)

💰 Prijsopbouw

Niet subsidiabele servicekosten €9,20

📍 Locatie

Kaart laden...

🚉

OV

5 min lopen naar station

🏬

Winkels

2 min lopen

🏫

Scholen

Meerdere binnen 1km

🌳

Park

10 min lopen

✅ Selectiecriteria

Uw inkomen is passend
Uw inkomen is niet hoger dan € 51537
Uw inkomen is niet hoger dan € 56910
18 jaar
Woningzoekenden met een Proefwonenurgentie of Woonkansurgentie kunnen geen reactie plaatsen
Meld je aan