Parelstraat 118 9743JE Groningen

Parelstraat 118
9743JE Groningen, Vinkhuizen-Noord

€805,54

Per maand

Interesse in dit type woning?

Ontvang direct bericht als er nieuwe woningen beschikbaar komen die bij uw woonwensen passen.

Meld je aan voor woningalerts

Gratis en vrijblijvend

Historische informatie

Deze huurwoning was beschikbaar voor reacties van 11-12-2025 tot 16-12-2025. Deze woning is niet meer beschikbaar voor nieuwe reacties.

🏠

71m²

Woonoppervlakte

🛏️

3

Kamers

Leegstand

Status

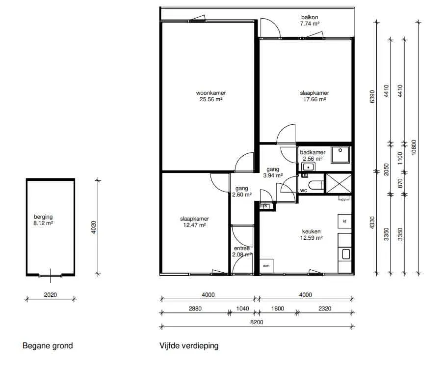
Nette ruime woning met 2 slaapkamers en een balkon en ligt op de 5e verdieping in de wijk Vinkhuizen. In de omgeving zijn diverse voorzieningen te vinden, waaronder Zernike, een winkelcentrum en openbaar vervoer. Van hieruit zijn de westelijke- en noordelijke ringweg snel bereikbaar. In 20 minuten fietst u naar het centrum van de stad. 

In de woning kan alleen elektrisch gekookt worden. U bent zelf verantwoordelijk voor de aanschaf van een geschikte kookplaat en pannen. 

De huuringangsdatum is 15 januari 2026.

Minimaal inkomen voor deze woning:
• Voor 1 persoon: € 29.400,-
• Voor 1 persoon met AOW: € 28.775,-
• Voor 2 personen (inclusief inwonende kinderen): € 39.925,-,-
• Voor 2 personen met AOW: € 38.650,-
• Voor 3 of meer personen (inclusief inwonende kinderen): geen eisen
Maximaal inkomen voor deze woning (dit geldt niet voor wijkvernieuwingsurgenties en rolstoelindicaties):
• Voor 1 persoon € 51.537,-
• Voor 2 of meer personen € 56.910,-
Meer algemene informatie over inkomensregels vind je hier.

 

📋 Specificaties

Type

Woonruimte

Soort woning

Galerijflat

Verdieping

5

Lift

✅ Ja

🏠 Vertrekken

Toilet 1x (0.97m²)
Badkamer 1x (2.56m²)
Berging 1x (8.12m²)
Slaapkamer 2x (30.13m²)
Keuken 1x (12.59m²)
Woonkamer 1x (25.56m²)

💰 Prijsopbouw

Niet subsidiabele servicekosten €41,40

📍 Locatie

Kaart laden...

🚉

OV

5 min lopen naar station

🏬

Winkels

2 min lopen

🏫

Scholen

Meerdere binnen 1km

🌳

Park

10 min lopen

✅ Selectiecriteria

Uw inkomen is passend
Uw inkomen is niet hoger dan € 51537
Uw inkomen is niet hoger dan € 56910
18 jaar
Woningzoekenden met een Proefwonenurgentie of Woonkansurgentie kunnen geen reactie plaatsen
Meld je aan