Parelstraat 286 9743JZ Groningen

Parelstraat 286
9743JZ Groningen, Vinkhuizen-Noord

€746,52

Per maand

Interesse in dit type woning?

Ontvang direct bericht als er nieuwe woningen beschikbaar komen die bij uw woonwensen passen.

Meld je aan voor woningalerts

Gratis en vrijblijvend

Historische informatie

Deze huurwoning was beschikbaar voor reacties van 29-01-2026 tot 03-02-2026. Deze woning is niet meer beschikbaar voor nieuwe reacties.

🏠

59.37m²

Woonoppervlakte

🛏️

3

Kamers

Leegstand

Status

Deze nette seniorenwoning met twee slaapkamers ligt op de begane grond in het complex Kleine Parel in de wijk Vinkhuizen, met veel voorzieningen binnen handbereik. De woning is per lift bereikbaar en beschikt over een eigen plaatsje. In de nabijheid vindt u een uitgebreid winkelcentrum en ook de bushalte is dichtbij. In de recreatieruimte onder de Grote Parelflat, 'de Pareloester', worden regelmatig allerlei leuke activiteiten georganiseerd voor bewoners. In twintig minuten fietst u naar het centrum. 

In deze woning kookt u op gas.

Deze woning is geschikt voor 1 of 2 volwassenen. Beide personen dienen minimaal 60 jaar te zijn. Inwonende kinderen zijn in deze woning niet toegestaan.

De nieuwe huuringangsdatum is 30 januari 2026.

Minimaal inkomen voor deze woning:
• geen eisen
Maximaal inkomen voor deze woning (dit geldt niet voor wijkvernieuwingsurgenties en rolstoelindicaties):
• Voor 1 persoon € 51.537,-
• Voor 2 of meer personen € 56.910,-

 

📋 Specificaties

Type

Woonruimte

Soort woning

Galerijflat

Verdieping

1

Lift

✅ Ja

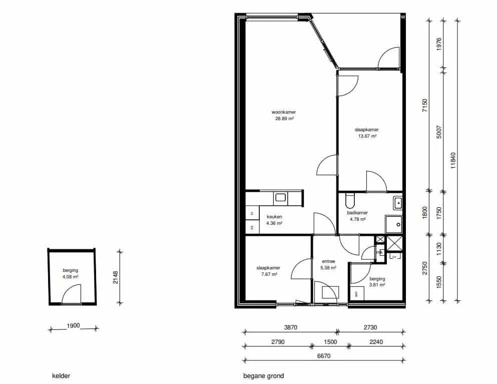
🏠 Vertrekken

Berging 1x (4.08m²)
Keuken 1x (4.36m²)
Slaapkamer 2x (21.34m²)
Woonkamer 1x (28.89m²)

💰 Prijsopbouw

Niet subsidiabele servicekosten €33,50

📍 Locatie

Kaart laden...

🚉

OV

5 min lopen naar station

🏬

Winkels

2 min lopen

🏫

Scholen

Meerdere binnen 1km

🌳

Park

10 min lopen

✅ Selectiecriteria

Uitsluitend voor huishoudens zonder inwonende kinderen
Uw inkomen is niet hoger dan € 51537
Uw inkomen is niet hoger dan € 56910
vanaf 60 jaar
Woningzoekenden met een Proefwonenurgentie of Woonkansurgentie kunnen geen reactie plaatsen
Meld je aan