Parelstraat 374 9743JZ Groningen

Parelstraat 374
9743JZ Groningen, Vinkhuizen-Noord

€746,47

Per maand

Interesse in dit type woning?

Ontvang direct bericht als er nieuwe woningen beschikbaar komen die bij uw woonwensen passen.

Meld je aan voor woningalerts

Gratis en vrijblijvend

Historische informatie

Deze huurwoning was beschikbaar voor reacties van 18-01-2026 tot 23-01-2026. Deze woning is niet meer beschikbaar voor nieuwe reacties.

🏠

60m²

Woonoppervlakte

🛏️

3

Kamers

Leegstand

Status

🌟

B

Energielabel

Deze nette seniorenwoning met twee slaapkamers ligt op de 4e woonlaag in het complex Kleine Parel in de wijk Vinkhuizen, met veel voorzieningen binnen handbereik. De woning is per lift bereikbaar en beschikt over een eigen balkon. In de nabijheid vindt u een uitgebreid winkelcentrum en ook de bushalte is dichtbij. In de recreatieruimte onder de Grote Parelflat, 'de Pareloester', worden regelmatig allerlei leuke activiteiten georganiseerd voor bewoners. In twintig minuten fietst u naar het centrum.

In deze woning kookt u op inductie. U bent zelf verantwoordelijk voor een geschikte kookplaat en pannen. 

Deze woning is geschikt voor 1 of 2 volwassenen. Beide personen dienen minimaal 60 jaar te zijn. Inwonende kinderen zijn in deze woning niet toegestaan.

De nieuwe huuringangsdatum is 13 februari 2026.

Minimaal inkomen voor deze woning:
• geen eisen
Maximaal inkomen voor deze woning (dit geldt niet voor wijkvernieuwingsurgenties en rolstoelindicaties):
• Voor 1 persoon € 51.537,-
• Voor 2 of meer personen € 56.910,-

📋 Specificaties

Type

Woonruimte

Soort woning

Galerijflat

Verdieping

4

Lift

✅ Ja

🏠 Vertrekken

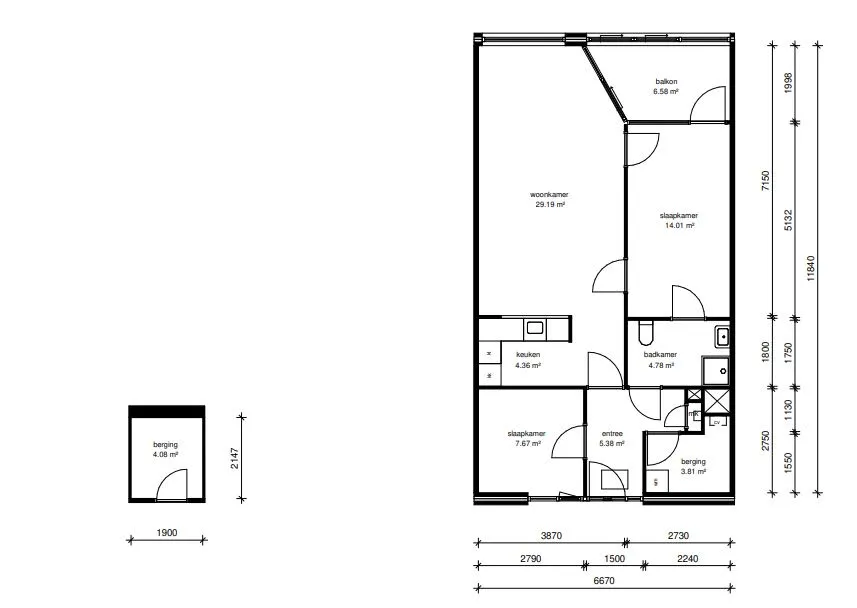
Berging 1x (4.08m²)
Keuken 1x (4.36m²)
Slaapkamer 2x (21.68m²)
Woonkamer 1x (29.19m²)

💰 Prijsopbouw

Niet subsidiabele servicekosten €33,45

📍 Locatie

Kaart laden...

🚉

OV

5 min lopen naar station

🏬

Winkels

2 min lopen

🏫

Scholen

Meerdere binnen 1km

🌳

Park

10 min lopen

✅ Selectiecriteria

Uitsluitend voor huishoudens zonder inwonende kinderen
Uw inkomen is niet hoger dan € 51537
Uw inkomen is niet hoger dan € 56910
vanaf 60 jaar
Meld je aan