Saffierstraat 232 9743LP Groningen

Saffierstraat 232
9743LP Groningen, Vinkhuizen-Noord

€799,44

Per maand

Interesse in dit type woning?

Ontvang direct bericht als er nieuwe woningen beschikbaar komen die bij uw woonwensen passen.

Meld je aan voor woningalerts

Gratis en vrijblijvend

Historische informatie

Deze huurwoning was beschikbaar voor reacties van 15-12-2025 tot 22-12-2025. Deze woning is niet meer beschikbaar voor nieuwe reacties.

🏠

71m²

Woonoppervlakte

🛏️

3

Kamers

Leegstand

Status

🌟

A

Energielabel

LET OP: de huurprijs bij de advertentietekst is fictief. Elke kamer heeft zijn eigen huurprijs.

Deze woning wordt alleen verhuurd aan 3 studenten onder de 28 jaar. Je kunt alleen reageren als je met 3 studenten op Woningnet staat ingeschreven. Reacties met minder dan 3 personen worden automatisch afgewezen. Voor deelname is een bewijs van DUO of een bewijs van inschrijving voor een voltijdstudie vereist. Het betreft onzelfstandige woonruimte, dus huurtoeslag is niet mogelijk. Je krijgt een campuscontract, wat betekent dat je alleen mag blijven huren zolang je student bent. Na afronding van je studie moet je de huur binnen zes maanden opzeggen.

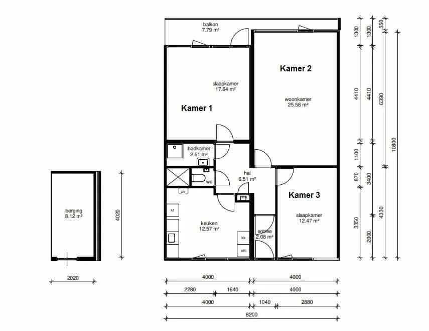
De woning heeft 3 kamers, die hieronder worden beschreven. Jullie bepalen zelf wie waar komt te wonen. De afrekening van de servicekosten water, gas en elektra gaan op basis van m2.

 

Kamer 1: €519,08 (inclusief servicekosten)

 

Kamer 2: €596,17 (inclusief servicekosten)

 

Kamer 3: €416,26 (inclusief servicekosten)

 

In de woning kan er alleen elektrisch gekookt worden. Je bent zelf verantwoordelijk voor het aanschaffen van een geschikte kookplaat en pannen. De kookplaat mag een maximaal vermogen van 7000 watt (7 kW) hebben. 

De kamers zijn per direct te huur. 

 

📋 Specificaties

Type

Woonruimte

Soort woning

Galerijflat

Verdieping

9

Lift

✅ Ja

🏠 Vertrekken

Toilet 1x (0.94m²)
Badkamer 1x (2.51m²)
Berging 1x (8.12m²)
Slaapkamer 2x (30.11m²)
Keuken 1x (12.57m²)
Woonkamer 1x (25.56m²)

💰 Prijsopbouw

Niet subsidiabele servicekosten €35,30

📍 Locatie

Kaart laden...

🚉

OV

5 min lopen naar station

🏬

Winkels

2 min lopen

🏫

Scholen

Meerdere binnen 1km

🌳

Park

10 min lopen

✅ Selectiecriteria

Uitsluitend voor huishoudens zonder inwonende kinderen
Uw inkomen is passend
Uw inkomen is niet hoger dan € 51537
Uw inkomen is niet hoger dan € 56910
tot 28 jaar
18 jaar
Woningzoekenden met een Proefwonenurgentie of Woonkansurgentie kunnen geen reactie plaatsen
Meld je aan